Achtermeulenlaan 43 - Bussum
📍 Bussum
🚪 4 kamers
📐 53.00 m²
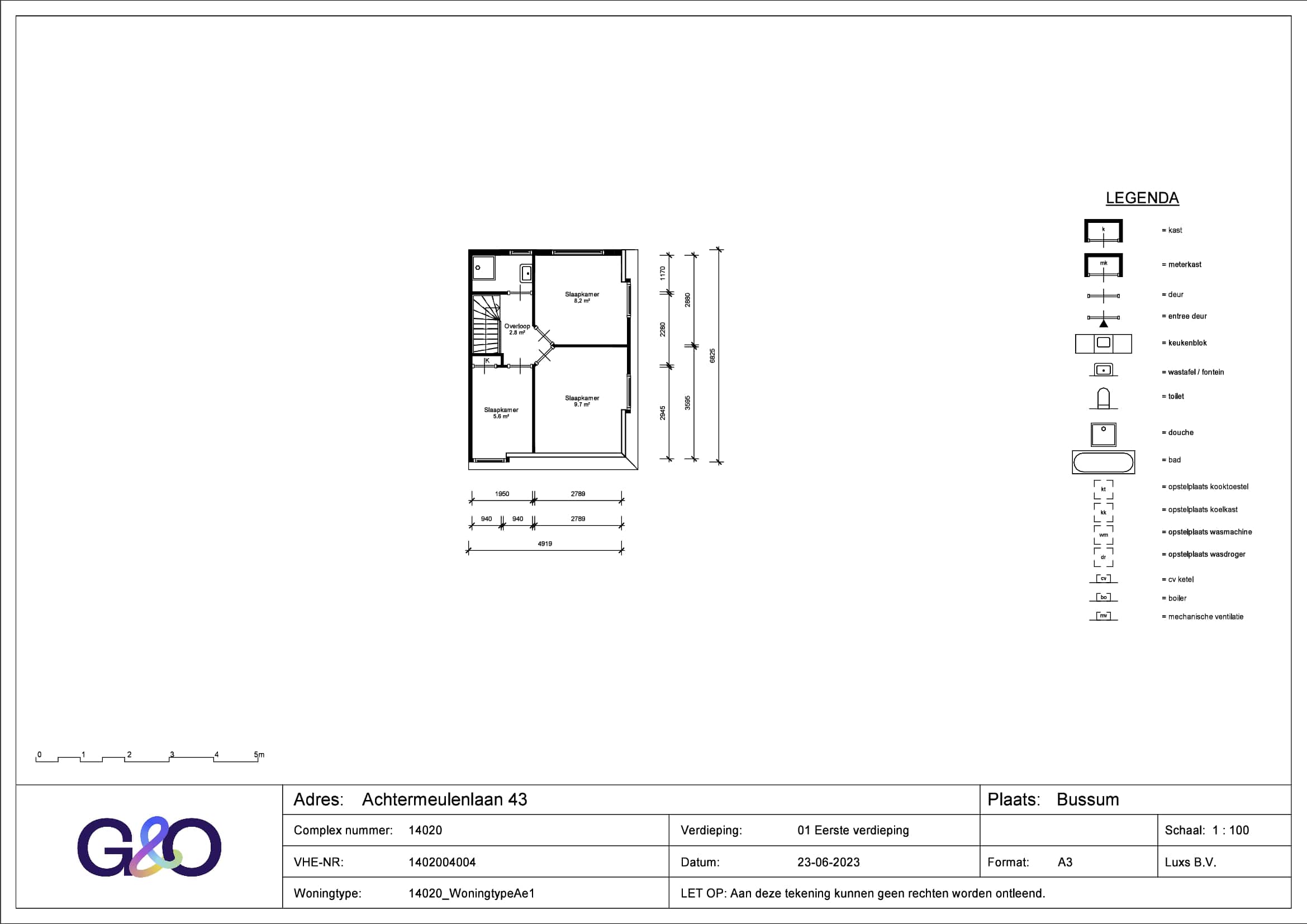
WoningKleine hoekwoning3 slaapkamersKeuken met perilexaansluiting voor elektrisch/inductie koken (geen gasaansluiting in de keuken aanwezig)Toilet Badkamer met douche en wastafelVerwarming via CV ketelKleine achtertuin op het noordoosten (moet nog ingericht worden door de nieuwe bewoner)Berging in de achtertuinOmgevingGratis parkeren in de straatHuizerweg met diverse winkels om de hoekPark Het Mouwtje vlakbijSportpark Zuid met diverse sportvoorzieningen op loopafstandTheater Spant op loopafstand3 Minuten fietsen naar het centrum van BussumDiverse scholen op fietsafstandBijzonderhedenLichtpunt in de steeg aangesloten op elektra van de woningDe woning wordt op dit moment gerenoveerd. Er is veel schilder- en behangwerk voor de nieuwe bewoner. En er moeten vloeren in de hele woning gelegd worden.De genoemde opleverdatum is onder voorbehoud.De plattegrond geeft een indruk van de woning maar kan afwijken van de werkelijkheid Let op!Je hebt alleen de binding met de gemeente Gooise Meren (Bussum, Muiden, Muiderberg, Naarden) aangezet in je inschrijving als je kunt aantonen dat je voldoet aan een van de onderstaande voorwaarden:Je woont nu minimaal 1 jaar achter elkaar in de gemeente of hebt in de afgelopen 10 minimaal 6 jaar achter elkaar in de gemeente gewoond (geen briefadres).Je werkt minimaal 19 uur per week in de gemeente en hebt een vast contract. Voor uitzendkrachten geldt dat het uitzendbureau is gevestigd in de gemeente. Mantelzorg geeft geen binding.Je volgt een dagopleiding van minimaal 19 uur per week in de gemeente.Je bent zelfstandig ondernemer. Je bedrijf staat bij de Kamer van Koophandel ingeschreven met een vestigingsadres in de gemeente en heeft een fysiek adres (bedrijfspand) in de gemeente.
Kenmerken
Type:
Woonruimte
Oppervlakte:
53.00 m²
Aantal kamers:
4
Energielabel:
B
Vertrekken
Slaapkamer
6.00 m²
Slaapkamer
8.00 m²
Slaapkamer
10.00 m²
Woonkamer
22.00 m²
Vergelijkbare woningen
Huurwoning - Anne Franklaan/Bussum (€2350.00/120.00m2)
Bussum
€2.350
5 kamers
Huurwoning - Meerweg/Bussum (€4100.00/161.00m2)
Bussum
€4.100
8 kamers
Appartement - Brinklaan/Bussum (€3000.00/152.00m2)
Bussum
€3.000
4 kamers
Huurwoning - Geuzenhof/Bussum (€2775.00/125.00m2)
Bussum
€2.775
5 kamers
Huurwoning - Graaf Florislaan/Bussum (€2500.00/153.00m2)
Bussum
€2.500
6 kamers
Appartement - Brinklaan/Bussum (€2800.00/100.00m2)
Bussum
€2.800
4 kamers
Meer woningen bekijken?
Ontdek ons volledige aanbod van huurwoningen in Nederland. Van studio's tot gezinswoningen.