Admiraal de Ruyterlaan 130 - Hilversum
📍 Hilversum
🚪 3 kamers
📐 49.00 m²
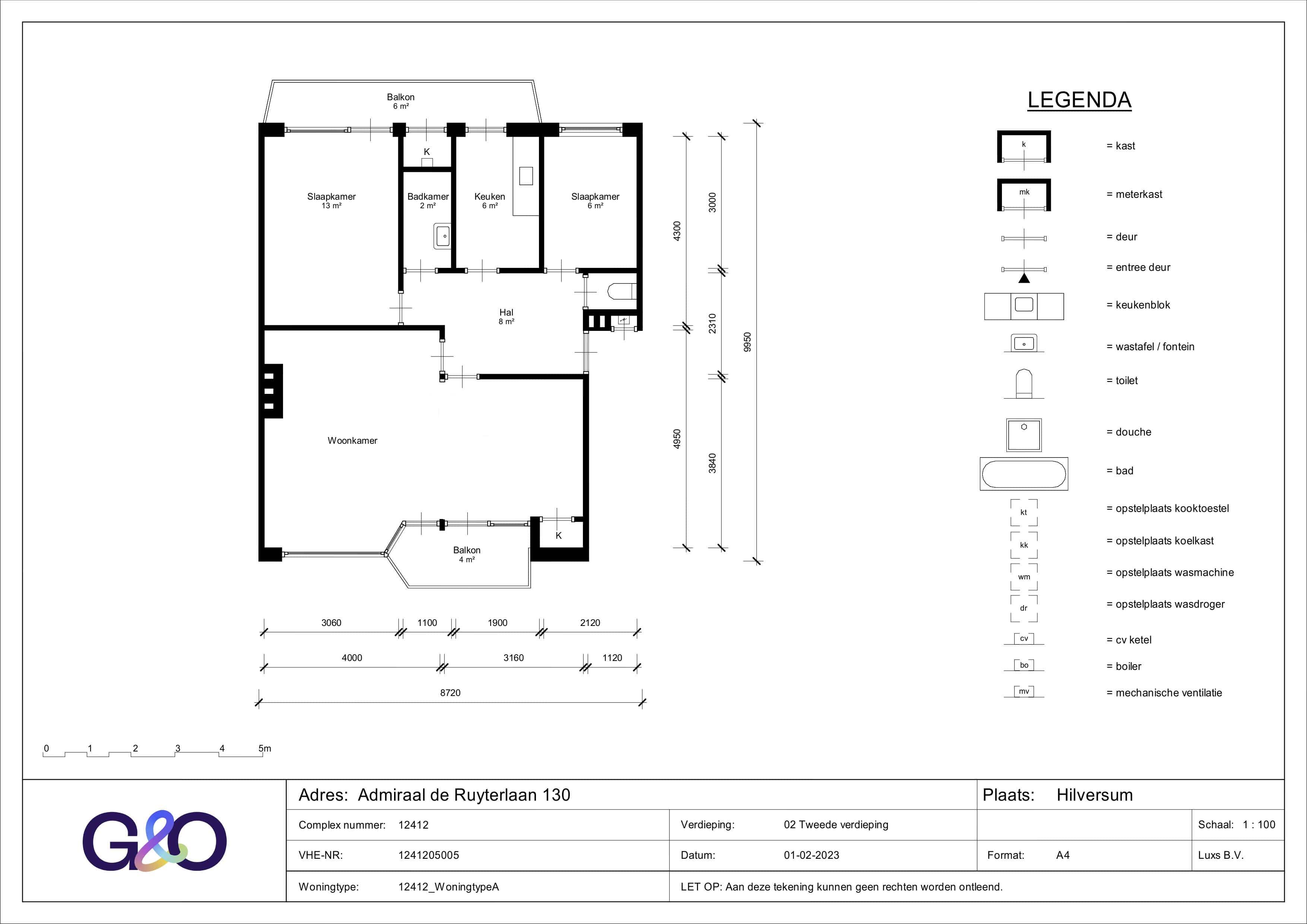
De woning:Appartement met een zeer ruime en lichte woonkamer (vroeger waren dit 2 kamers) aan de voorzijde. Er is 1 grote en 1 kleine slaapkamer aan de achterzijde. De woning ligt op de 2e etage (het gebouw heeft 3 etages). Je bereikt de woning via de trap. Er is geen lift in het gebouw. De keuken is gerenoveerd en ligt aan de achterzijde, apart van de woonkamer. In de keuken zit een aansluiting voor elektrisch koken. De aansluiting voor de wasmachine zit ook in de keuken. De kleine badkamer heeft een douche en een wastafel. Er is een apart toilet. Vanuit de woonkamer heb je toegang tot een balkon op het zuidoosten. Aan de achterzijde is een balkon op het noordwesten. In de kelder is een eigen berging.De plattegrond is van een vergelijkbare woning.Omgeving:De woning ligt aan een breed opgezette weg aan de rand van Hilversum. Een bushalte en supermarkt zijn op loopafstand. Vanaf de woning loop je in een paar minuten naar het vlakbij gelegen natuurgebied aan de zuidkant van Hilversum.Let op:Het gebouw is zeer gehorig. Er vindt een intakegesprek plaats met onze woonconsulent.De huurprijs en de verhuurdatum zijn onder voorbehoud en kunnen nog wijzigen.
Kenmerken
Type:
Woonruimte
Oppervlakte:
49.00 m²
Aantal kamers:
3
Energielabel:
B
Vertrekken
Slaapkamer
6.00 m²
Slaapkamer
13.00 m²
Woonkamer
30.00 m²
Vergelijkbare woningen
Appartement - Beverlaan/Hilversum (€1050.00/61.00m2)
Hilversum
€1.050
3 kamers
Huurwoning - Hindelaan/Hilversum (€3350.00/148.00m2)
Hilversum
€3.350
6 kamers
Huurwoning - St. Annastraat/Hilversum (€2850.00/120.00m2)
Hilversum
€2.850
3 kamers
Appartement - Binnendoor/Hilversum (€1800.00/76.00m2)
Hilversum
€1.800
3 kamers
Huurwoning - Curaçaolaan/Hilversum (€4250.00/177.00m2)
Hilversum
€4.250
6 kamers
Appartement - Minister Hartsenlaan/Hilversum (€979.00/42.00m2)
Hilversum
€979
2 kamers
Meer woningen bekijken?
Ontdek ons volledige aanbod van huurwoningen in Nederland. Van studio's tot gezinswoningen.