Amkemaheerd 425 - Groningen
📍 Groningen
🚪 3 kamers
Mooie seniorenwoning met 2 slaapkamers in Beijum. De woning wordt voorzien van een nieuwe badkamer. U woont dichtbij winkels, openbaar vervoer en natuurgebied Beijumerbos. Ook woont u dichtbij uitvalswegen. De nieuwe huuringangsdatum is 30-3-2026.Beijum-Oost is onderdeel van wijkvernieuwing. Er wordt gestreefd naar een diverse wijk. Mensen met een inkomen tussen € 51,537,00 en € 70.149,00 voor een eenpersoonshuishouden en tussen € 56.910,00 en € 93.531,00 voor een meerpersoonshuishouden, komen als eerst in aanmerking voor deze woning. Heeft u verdere vragen over de regeling, dan kunt u naar: Wijkvernieuwing op z’n Gronings - Wijkvernieuwing GroningenMinimaal inkomen voor deze woning:• geen eisen
Kenmerken
Type:
Woonruimte
Aantal kamers:
3
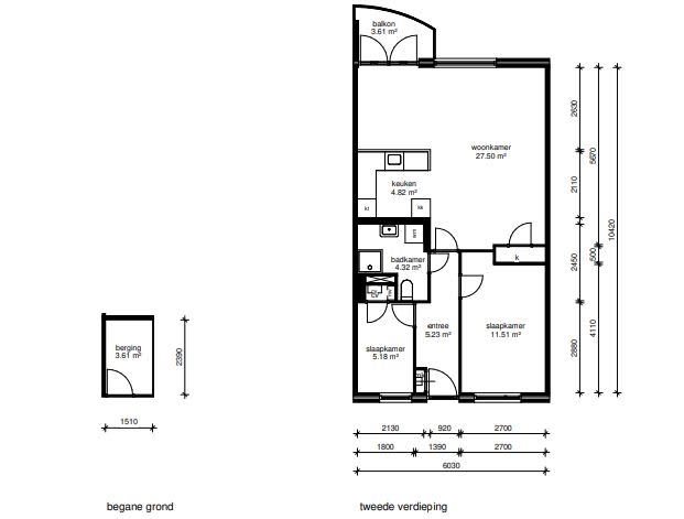
Vertrekken
Berging
3.61 m²
Keuken
4.82 m²
Slaapkamer
5.18 m²
Slaapkamer
11.51 m²
Woonkamer
27.50 m²
Vergelijkbare woningen
Appartement - Naberstraat/Groningen (€2450.00/110.00m2)
Groningen
€2.450
3 kamers
Huurwoning - Pioenstraat/Groningen (€2155.00/149.00m2)
Groningen
€2.155
6 kamers
Huurwoning - Hyacinthstraat/Groningen (€2155.00/127.00m2)
Groningen
€2.155
5 kamers
Studio - Coendersweg/Groningen (€840.00/24.00m2)
Groningen
€840
1 kamers
Geen foto
Kamer - Hoekstraat/Groningen (€850.00/19.98m2)
Groningen
€850
1 kamers
Huurwoning - Hondsruglaan/Groningen (€2900.00/178.00m2)
Groningen
€2.900
5 kamers
Meer woningen bekijken?
Ontdek ons volledige aanbod van huurwoningen in Nederland. Van studio's tot gezinswoningen.