Aquamarijnstraat 831 - Groningen
📍 Groningen
🚪 2 kamers
📐 51.36 m²
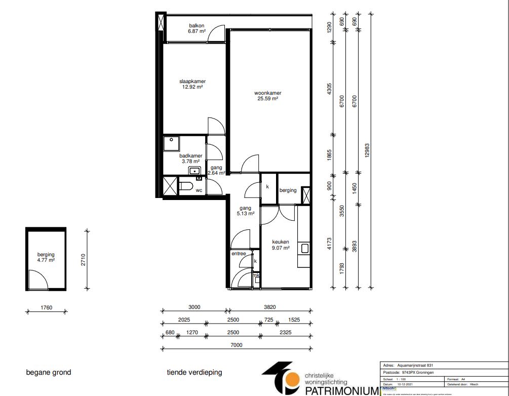
Let op: dit betreft een studentenwoning. Een recent bewijs van een voltijdstudie/inschrijving van de opleiding is vereist. Leuke studentenwoning met 1 slaapkamer en 1 woonkamer die ook als slaapkamer gebruikt kan worden. De woning is geschikt voor 2 studenten. Het appartement bevindt zich op de 10e woonlaag en beschikt over een balkon. Je woont in de wijk Vinkhuizen, dichtbij Zernike, winkels en het openbaar vervoer. In ruim een kwartier fiets je naar het centrum van de stad. In de woning vinden een toilet, badkamer- en keukenrenovatie plaats.Vanaf de ingangsdatum kan er in de woning alleen elektrisch gekookt worden. U bent zelf verantwoordelijk voor het aanschaffen van een geschikte kookplaat en pannen. De kookplaat mag een maximaal vermogen van 7000 watt (7 kW) hebben. De nieuwe huuringangsdatum is 12 november 2025. Minimaal inkomen voor deze woning:• geen eisenMaximaal inkomen voor deze woning (dit geldt niet voor wijkvernieuwingsurgenties en rolstoelindicaties):• Voor 1 persoon € 49.669,-• Voor 2 of meer personen € 54.847,-
Kenmerken
Type:
Woonruimte
Oppervlakte:
51.36 m²
Aantal kamers:
2
Energielabel:
C
Vertrekken
Badkamer
3.78 m²
Berging
4.77 m²
Keuken
9.07 m²
Slaapkamer
12.92 m²
Woonkamer
25.59 m²
Vergelijkbare woningen
Appartement - Naberstraat/Groningen (€2450.00/110.00m2)
Groningen
€2.450
3 kamers
Huurwoning - Pioenstraat/Groningen (€2155.00/149.00m2)
Groningen
€2.155
6 kamers
Huurwoning - Hyacinthstraat/Groningen (€2155.00/127.00m2)
Groningen
€2.155
5 kamers
Studio - Coendersweg/Groningen (€840.00/24.00m2)
Groningen
€840
1 kamers
Geen foto
Kamer - Hoekstraat/Groningen (€850.00/19.98m2)
Groningen
€850
1 kamers
Huurwoning - Hondsruglaan/Groningen (€2900.00/178.00m2)
Groningen
€2.900
5 kamers
Meer woningen bekijken?
Ontdek ons volledige aanbod van huurwoningen in Nederland. Van studio's tot gezinswoningen.