Aquamarijnstraat 679 - Groningen
📍 Groningen
🚪 3 kamers
Let op: we verhuren deze woning ALLEEN AAN 3 STUDENTEN onder de 28 jaar. Je mag alleen reageren als je met 3 studenten op Woningnet staat ingeschreven. Alle reacties met minder dan 3 personen zullen automatisch worden afgewezen. Een bewijs van DUO of een bewijs van een voltijdstudie inschrijving van de opleiding is vereist. Leuke studentenwoning met 3 aparte kamers. De woning is geschikt voor 3 studenten. Het appartement bevindt zich op de 9e woonlaag en beschikt over een balkon. Je woont in de wijk Vinkhuizen, dichtbij Zernike, winkels en het openbaar vervoer. In ruim een kwartier fiets je naar het centrum van de stad. Vanaf de ingangsdatum kan er in de woning alleen elektrisch gekookt worden. Je bent zelf verantwoordelijk voor het aanschaffen van een geschikte kookplaat en pannen. De kookplaat mag een maximaal vermogen van 7000 watt (7 kW) hebben.  De nieuwe huuringangsdatum is 30 januari 2026.
Kenmerken
Type:
Woonruimte
Aantal kamers:
3
Energielabel:
C
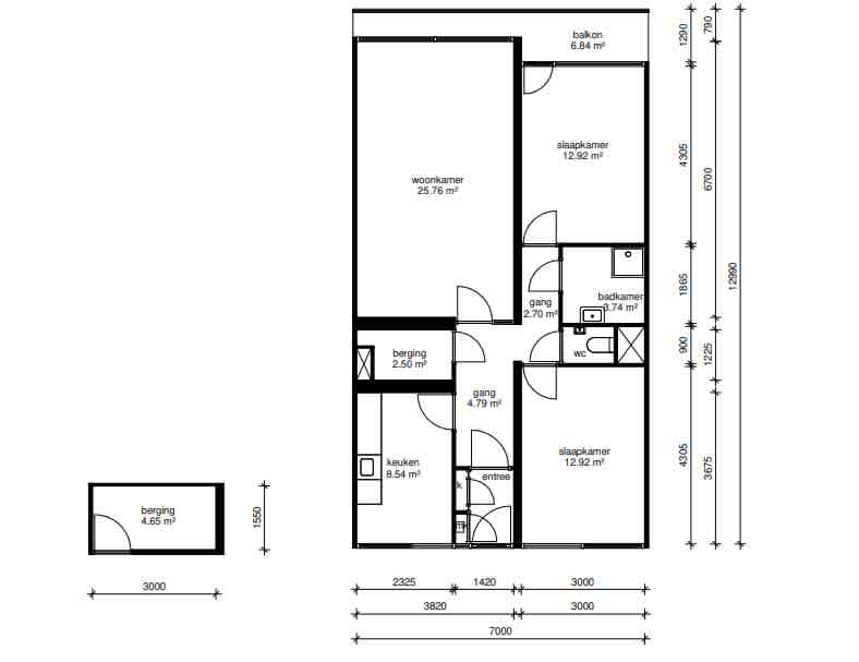
Vertrekken
Toilet
1.14 m²
Badkamer
3.74 m²
Berging
4.65 m²
Keuken
8.54 m²
Slaapkamer
12.92 m²
Slaapkamer
12.92 m²
Woonkamer
25.76 m²
Vergelijkbare woningen
Appartement - Naberstraat/Groningen (€2450.00/110.00m2)
Groningen
€2.450
3 kamers
Huurwoning - Pioenstraat/Groningen (€2155.00/149.00m2)
Groningen
€2.155
6 kamers
Huurwoning - Hyacinthstraat/Groningen (€2155.00/127.00m2)
Groningen
€2.155
5 kamers
Studio - Coendersweg/Groningen (€840.00/24.00m2)
Groningen
€840
1 kamers
Geen foto
Kamer - Hoekstraat/Groningen (€850.00/19.98m2)
Groningen
€850
1 kamers
Huurwoning - Hondsruglaan/Groningen (€2900.00/178.00m2)
Groningen
€2.900
5 kamers
Meer woningen bekijken?
Ontdek ons volledige aanbod van huurwoningen in Nederland. Van studio's tot gezinswoningen.