Balkgat 17 - Groningen
📍 Groningen
🚪 2 kamers
Leuke woning op de 1e verdieping met 1 slaapkamer en een klein balkon op een rustige plek dichtbij het centrum. U woont dichtbij winkels, openbaar vervoer en uitvalswegen.De nieuwe huuringangsdatum is 26 januari 2026.Voordat wij u de woning definitief toewijzen, plannen wij een intakegesprek. Tijdens dat gesprek vertellen wij u meer over de woning en over de (nabije) woonomgeving en bespreken we met u of die bij u als huurder passen. Op basis van de intake kan de voorlopige aanbieding worden ingetrokken. Uw inschrijfdatum bij Groningen huurt is dus niet bepalend voor definitieve toewijzing van deze woning.Minimaal inkomen voor deze woning:• geen eisenMaximaal inkomen voor deze woning (dit geldt niet voor wijkvernieuwingsurgenties en rolstoelindicaties):• Voor 1 persoon € 51.537,-• Voor 2 of meer personen € 56.910,-
Kenmerken
Type:
Woonruimte
Aantal kamers:
2
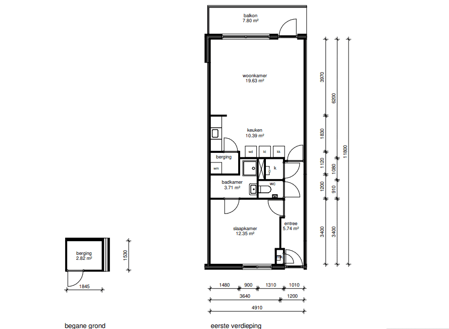
Vertrekken
Toilet
1.19 m²
Berging
2.82 m²
Badkamer
3.71 m²
Keuken
10.39 m²
Slaapkamer
12.35 m²
Woonkamer
19.63 m²
Vergelijkbare woningen
Appartement - Naberstraat/Groningen (€2450.00/110.00m2)
Groningen
€2.450
3 kamers
Huurwoning - Pioenstraat/Groningen (€2155.00/149.00m2)
Groningen
€2.155
6 kamers
Huurwoning - Hyacinthstraat/Groningen (€2155.00/127.00m2)
Groningen
€2.155
5 kamers
Studio - Coendersweg/Groningen (€840.00/24.00m2)
Groningen
€840
1 kamers
Geen foto
Kamer - Hoekstraat/Groningen (€850.00/19.98m2)
Groningen
€850
1 kamers
Huurwoning - Hondsruglaan/Groningen (€2900.00/178.00m2)
Groningen
€2.900
5 kamers
Meer woningen bekijken?
Ontdek ons volledige aanbod van huurwoningen in Nederland. Van studio's tot gezinswoningen.