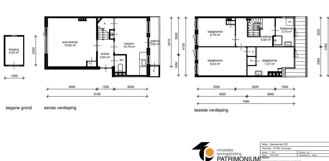
Bataviastraat 57B - Groningen
📍 Groningen
🚪 4 kamers
📐 53.59 m²
Mooie bovenwoning met 3 slaapkamers en een balkon in de Indische Buurt. In de omgeving zijn diverse voorzieningen te vinden, waaronder winkels en openbaar vervoer. U woont dicht bij het centrum van de stad. Let op: het betreft gehorige woningen. Er vinden een badkamer- en keukenrenovatie plaats. Op de bovenverdieping zijn alle wanden voorzien van sierpleister. Dit blijft zo. Er zullen in de nabije toekomst renovatiewerkzaamheden gaan plaatsvinden aan de buitenzijde van de woningen. Dit kan overlast met zich meebrengen. Zie foto voor eventuele werkzaamheden.De nieuwe huuringangsdatum is per 20 november 2025.Voordat wij u de woning definitief toewijzen, plannen wij mogelijk een intakegesprek. Tijdens dat gesprek vertellen wij u meer over de woning en over de (nabije) woonomgeving en bespreken we met u of die bij u als huurder passen. Op basis van de intake kan de voorlopige aanbieding worden ingetrokken. Uw inschrijfdatum bij WoningNet is dus niet bepalend voor definitieve toewijzing van deze woning.Minimaal inkomen voor deze woning:• geen eisenMaximaal inkomen voor deze woning (dit geldt niet voor wijkvernieuwingsurgenties en rolstoelindicaties):• Voor 1 persoon € 49.669,-• Voor 2 of meer personen € 54.847,-
Kenmerken
Type:
Woonruimte
Oppervlakte:
53.59 m²
Aantal kamers:
4
Energielabel:
C
Vertrekken
Berging
3.50 m²
Badkamer
3.70 m²
Slaapkamer
6.76 m²
Slaapkamer
7.27 m²
Slaapkamer
9.42 m²
Keuken
10.79 m²
Woonkamer
15.65 m²
Vergelijkbare woningen
Appartement - Naberstraat/Groningen (€2450.00/110.00m2)
Groningen
€2.450
3 kamers
Huurwoning - Pioenstraat/Groningen (€2155.00/149.00m2)
Groningen
€2.155
6 kamers
Huurwoning - Hyacinthstraat/Groningen (€2155.00/127.00m2)
Groningen
€2.155
5 kamers
Studio - Coendersweg/Groningen (€840.00/24.00m2)
Groningen
€840
1 kamers
Geen foto
Kamer - Hoekstraat/Groningen (€850.00/19.98m2)
Groningen
€850
1 kamers
Huurwoning - Hondsruglaan/Groningen (€2900.00/178.00m2)
Groningen
€2.900
5 kamers
Meer woningen bekijken?
Ontdek ons volledige aanbod van huurwoningen in Nederland. Van studio's tot gezinswoningen.