Bataviastraat 50 - Groningen
📍 Groningen
🚪 2 kamers
📐 37.99 m²
Knusse benedenwoning met 1 slaapkamer en een ruime tuin. Het betreft een gehorige woning doordat deze wat ouder is. Er is eventueel een laminaatvloer ter overname aanwezig. U woont in de Indische buurt dichtbij winkels en uitvalswegen. Binnen 10 minuten fietst u naar het centrum. De huuringangsdatum is 16 december 2025.Minimaal inkomen voor deze woning:• geen eisenMaximaal inkomen voor deze woning (dit geldt niet voor wijkvernieuwingsurgenties en rolstoelindicaties):• Voor 1 persoon € 49.669,-• Voor 2 of meer personen € 54.847,-Meer algemene informatie over inkomensregels vind je hier.
Kenmerken
Type:
Woonruimte
Oppervlakte:
37.99 m²
Aantal kamers:
2
Energielabel:
C
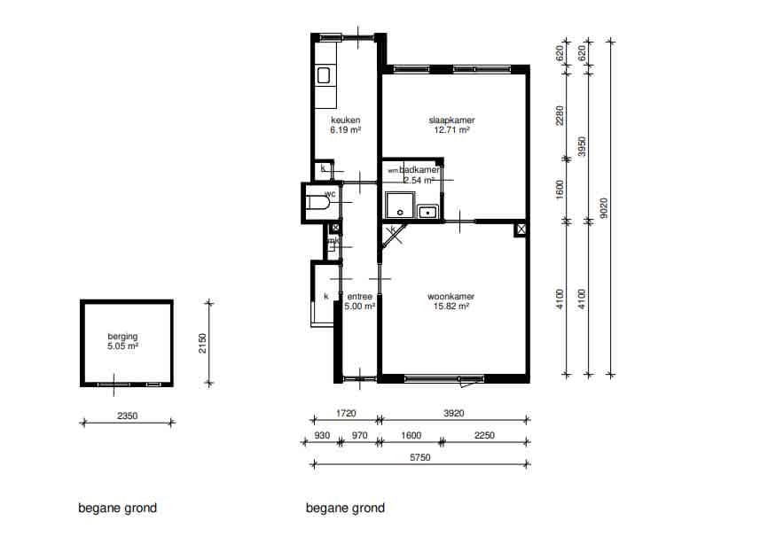
Vertrekken
Badkamer
2.53 m²
Berging
5.00 m²
Keuken
6.79 m²
Slaapkamer
12.71 m²
Woonkamer
15.96 m²
Vergelijkbare woningen
Appartement - Naberstraat/Groningen (€2450.00/110.00m2)
Groningen
€2.450
3 kamers
Huurwoning - Pioenstraat/Groningen (€2155.00/149.00m2)
Groningen
€2.155
6 kamers
Huurwoning - Hyacinthstraat/Groningen (€2155.00/127.00m2)
Groningen
€2.155
5 kamers
Studio - Coendersweg/Groningen (€840.00/24.00m2)
Groningen
€840
1 kamers
Geen foto
Kamer - Hoekstraat/Groningen (€850.00/19.98m2)
Groningen
€850
1 kamers
Huurwoning - Hondsruglaan/Groningen (€2900.00/178.00m2)
Groningen
€2.900
5 kamers
Meer woningen bekijken?
Ontdek ons volledige aanbod van huurwoningen in Nederland. Van studio's tot gezinswoningen.