+4
Beemsterstraat 35 - Assendelft
📍 Assendelft
🚪 2 kamers
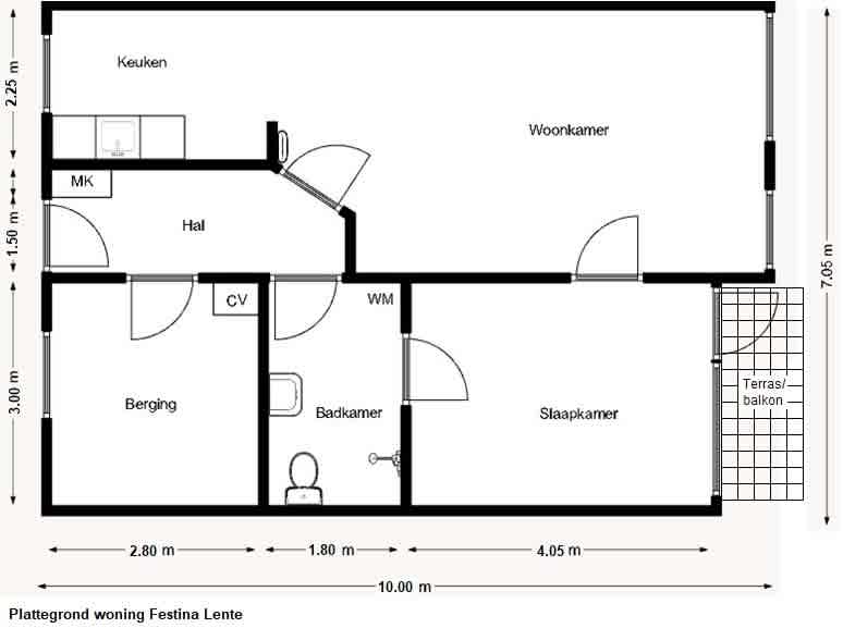
Bij wooncomplex Festina Lente komt deze twee kamer seniorenwoning vrij. Via de entree loopt u rechtdoor via de binnentuin naar uw voordeur. Deze woning ligt op de begane grond. Entree: vanuit de hal heeft u toegang tot de woonkamer met open keuken, badkamer en berging. Naast de woonkamer is de slaapkamer gelegen. Vanuit de slaapkamer heeft u toegang tot een tuin met een klein terras, grenzend aan de straat. Het huren van deze woning brengt de verplichting met zich mee deze tuin enigszins te onderhouden. De tuin is gelegen op het noordwesten en heeft middag/ avond zon. De inpandige badkamer is ook vanuit de slaapkamer te betreden en is voorzien van een douche, toilet, wastafel en de aansluiting voor de was-en droogmachine. De woning heeft een eigen cv-ketel, elektrameter en watermeter. In de woning zijn de volgende zaken ter overname: Vinyl, Laminaat, gordijnen, vitrages. Wooncomplex Het wooncomplex Festina Lente omvat 18 woningen met 2 kamers. Bij de entree vindt u de postbussen. De hoofdingang is afgesloten en te openen met uw voordeursleutel. Er is een kleine fietsenstalling aanwezig. Bij voorkeur wordt de scootmobiel in de woning geparkeerd, er is weinig plek in de stalling. Het bestaande verpleeg/ verzorgingshuis wordt op korte termijn gesloopt. Omgeving Er zijn een paar parkeerplekken beschikbaar op eigen terrein, verder is er rondom het wooncomplex vrij parkeren. De parkeerdruk is laag. De afvalcontainers zijn centraal opgesteld bij de ingang van het wooncomplex. De bushalte bevindt zich tegenover de woningen. Op 300 meter bevindt zich een supermarkt en op 500 meter een apotheek. Altijd iemand bereikbaar De bewonersconsulent is het aanspreekpunt voor alle bewoners. Zij maakt u graag wegwijs in uw nieuwe woonomgeving en ziet erop toe dat u er prettig en rustig kunt wonen. Daarbij zorgt zij ervoor dat u precies de service krijgt die u wilt. Tweemaal per week is de bewonersconsulent aanwezig op het wooncomplex. U kunt van maandag tot en met vrijdag van 08.30 tot 12.00 uur telefonisch terecht bij de bewonersconsulent op 088-9210171. En anders krijgt u een collega aan de lijn. Na werktijden wordt er voor spoedgevallen automatisch doorgeschakeld naar de meldkamer. Er is dus altijd iemand bereikbaar.
Kenmerken
Type:
Woonruimte
Aantal kamers:
2
Energielabel:
B
Vertrekken
Hal
5.22 m²
Badkamer/toilet
5.63 m²
Keuken
7.04 m²
Berging
8.11 m²
Slaapkamer
12.03 m²
Woonkamer
23.47 m²
Vergelijkbare woningen
Appartement - Wisselwachter/Assendelft (€1650.00/76.00m2)
Assendelft
€1.650
3 kamers
Woning aan de Hooikade te Den Haag
Den Haag
€3.590
3 kamers
Woning aan de Amsterdamsestraat te Muiden
Muiden
€1.750
2 kamers
Woning aan de Pannesheiderstraat te Kerkrade
Kerkrade
€380
1 kamers
Woning aan de Maaskade te Rotterdam
Rotterdam
€2.350
3 kamers
Woning aan de Markt te Roosendaal
Roosendaal
€650
1 kamers
Meer woningen bekijken?
Ontdek ons volledige aanbod van huurwoningen in Nederland. Van studio's tot gezinswoningen.