Berkenlaan 220 - Groningen
📍 Groningen
🚪 3 kamers
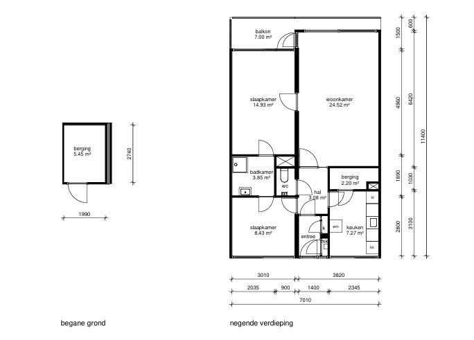
Mooie seniorenwoning met 2 slaapkamers en een balkon in de Berkenflat in de wijk Selwerd. De woning bevindt zich op de 9e woonlaag en is per lift bereikbaar. U woont tegenover het winkelcentrum. Beide personen dienen minimaal 70 jaar te zijn. Inwonende kinderen zijn in deze woning niet toegestaan.   Koken wordt op inductie gedaan en voor warmte dient u zich aan te melden bij Warmtestad. De nieuwe huuringangsdatum is per 24 april 2026.Minimaal inkomen voor deze woning:• geen eisenMaximaal inkomen voor deze woning (dit geldt niet voor wijkvernieuwingsurgenties en rolstoelindicaties):• Voor 1 persoon € 51.537,-• Voor 2 of meer personen € 56.910,-De advertentie is gewijzigd op 26-03-2026 09:53:51.
Kenmerken
Type:
Woonruimte
Aantal kamers:
3
Vertrekken
Toilet
1.18 m²
Badkamer
3.85 m²
Berging
5.45 m²
Keuken
7.27 m²
Slaapkamer
8.43 m²
Slaapkamer
14.93 m²
Woonkamer
24.52 m²
Vergelijkbare woningen
Appartement - Naberstraat/Groningen (€2450.00/110.00m2)
Groningen
€2.450
3 kamers
Huurwoning - Pioenstraat/Groningen (€2155.00/149.00m2)
Groningen
€2.155
6 kamers
Huurwoning - Hyacinthstraat/Groningen (€2155.00/127.00m2)
Groningen
€2.155
5 kamers
Studio - Coendersweg/Groningen (€840.00/24.00m2)
Groningen
€840
1 kamers
Geen foto
Kamer - Hoekstraat/Groningen (€850.00/19.98m2)
Groningen
€850
1 kamers
Huurwoning - Hondsruglaan/Groningen (€2900.00/178.00m2)
Groningen
€2.900
5 kamers
Meer woningen bekijken?
Ontdek ons volledige aanbod van huurwoningen in Nederland. Van studio's tot gezinswoningen.