Beukenlaan 90 - Groningen
📍 Groningen
🚪 3 kamers
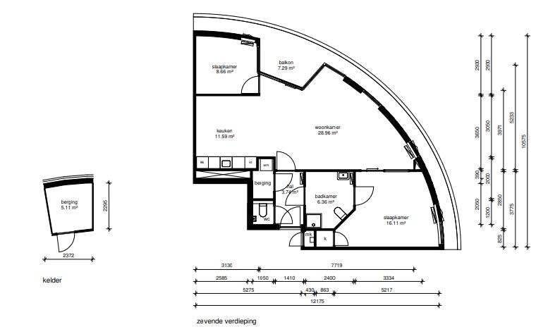
Prachtig seniorenappartement in ons nieuwbouwcomplex "De Beukenhorst" in de wijk Selwerd. De woning bevindt zich op de 7e woonlaag. Het appartement beschikt over een royale woonkamer met veel lichtinval, twee slaapkamers en een balkon. Op de begane grond bevindt zich een afgesloten berging. Het gebouw beschikt over een eigen ingang en de woning is per lift te bereiken. In de omgeving zijn diverse voorzieningen te vinden, waaronder een winkelcentrum en openbaar vervoer. Beide personen dienen minimaal 70 jaar te zijn. Inwonende kinderen zijn in deze woning niet toegestaan. Het appartementencomplex is aardbevingsbestendig gebouwd en aangesloten op warmtelevering van Warmtestad. Het koken wordt elektrisch gedaan. Ieder appartement heeft over de volle breedte een ruim balkon. Alle ramen zijn hierdoor ook aan de buitenzijde gemakkelijk te bewassen. De balustrade is gedeeltelijk voorzien van een geperforeerde plaat.De nieuwe huuringangsdatum is 26 maart 2026.Minimaal inkomen voor deze woning:• Voor 1 persoon: € 29.400,- • Voor 2 of meer personen (inclusief inwonende kinderen): € 39.925,-Maximaal inkomen voor deze woning (dit geldt niet voor wijkvernieuwingsurgenties en rolstoelindicaties):• Voor 1 persoon € 51.537• Voor 2 of meer personen € 56.910
Kenmerken
Type:
Woonruimte
Aantal kamers:
3
Energielabel:
A
Vertrekken
Toilet
1.26 m²
Berging
5.11 m²
Slaapkamer
8.66 m²
Keuken
11.59 m²
Slaapkamer
16.11 m²
Woonkamer
28.96 m²
Vergelijkbare woningen
Appartement - Naberstraat/Groningen (€2450.00/110.00m2)
Groningen
€2.450
3 kamers
Huurwoning - Pioenstraat/Groningen (€2155.00/149.00m2)
Groningen
€2.155
6 kamers
Huurwoning - Hyacinthstraat/Groningen (€2155.00/127.00m2)
Groningen
€2.155
5 kamers
Studio - Coendersweg/Groningen (€840.00/24.00m2)
Groningen
€840
1 kamers
Geen foto
Kamer - Hoekstraat/Groningen (€850.00/19.98m2)
Groningen
€850
1 kamers
Huurwoning - Hondsruglaan/Groningen (€2900.00/178.00m2)
Groningen
€2.900
5 kamers
Meer woningen bekijken?
Ontdek ons volledige aanbod van huurwoningen in Nederland. Van studio's tot gezinswoningen.