Bezettingslaan 88 - Groningen
📍 Groningen
🚪 2 kamers
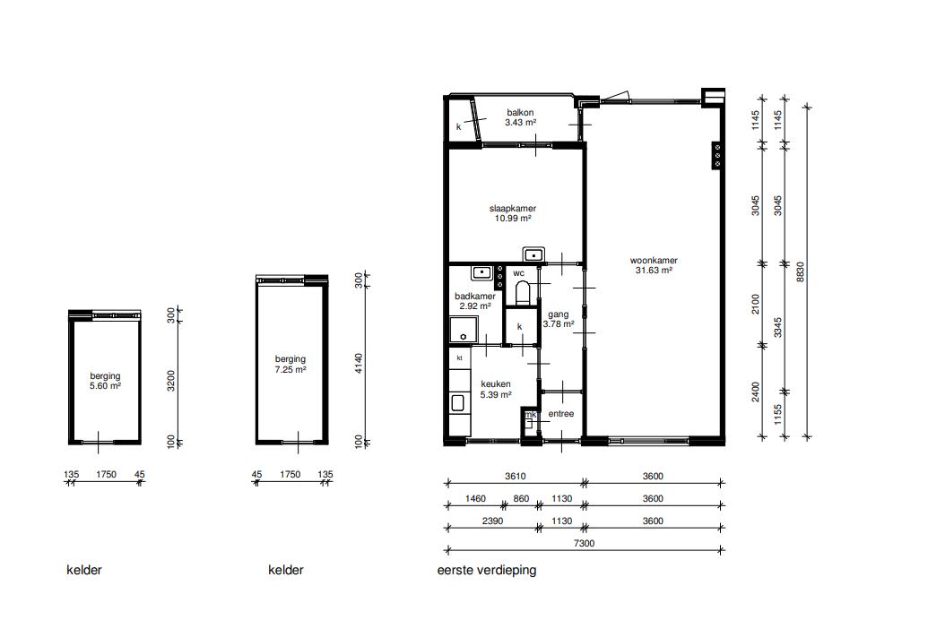
Leuk appartement met een ruime woonkamer en 1 slaapkamer in de wijk Corpus den Hoorn. Deze woning is te bereiken met een lift en via de trap en heeft een balkon. De woning beschikt over 2 bergingen. U woont dichtbij winkels en uitvalswegen.Let op: het betreft hier een gehorige woning. We zijn op zoek naar een rustig persoon. De nieuwe huuringangsdatum is 4 december 2025.Minimaal inkomen voor deze woning:• geen eisenMaximaal inkomen voor deze woning (dit geldt niet voor wijkvernieuwingsurgenties en rolstoelindicaties):• Voor 1 persoon € 49.669,-• Voor 2 of meer personen € 54.847,-
Kenmerken
Type:
Woonruimte
Aantal kamers:
2
Energielabel:
A+
Vertrekken
Toilet
0.93 m²
Badkamer
2.92 m²
Keuken
5.39 m²
Berging
7.24 m²
Slaapkamer
10.99 m²
Woonkamer
31.63 m²
Vergelijkbare woningen
Appartement - Naberstraat/Groningen (€2450.00/110.00m2)
Groningen
€2.450
3 kamers
Huurwoning - Pioenstraat/Groningen (€2155.00/149.00m2)
Groningen
€2.155
6 kamers
Huurwoning - Hyacinthstraat/Groningen (€2155.00/127.00m2)
Groningen
€2.155
5 kamers
Studio - Coendersweg/Groningen (€840.00/24.00m2)
Groningen
€840
1 kamers
Geen foto
Kamer - Hoekstraat/Groningen (€850.00/19.98m2)
Groningen
€850
1 kamers
Huurwoning - Hondsruglaan/Groningen (€2900.00/178.00m2)
Groningen
€2.900
5 kamers
Meer woningen bekijken?
Ontdek ons volledige aanbod van huurwoningen in Nederland. Van studio's tot gezinswoningen.