Bezettingslaan 192 - Groningen
📍 Groningen
🚪 3 kamers
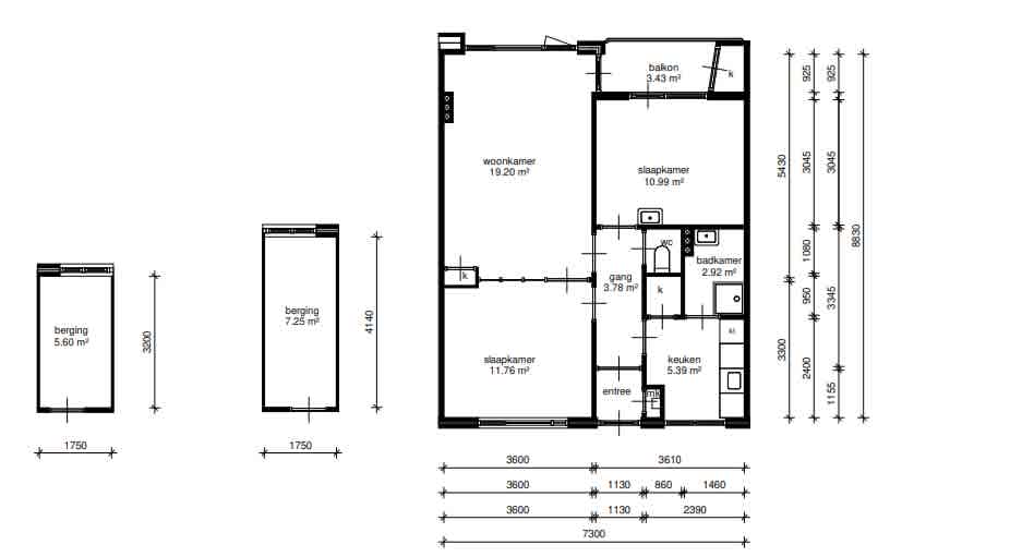
Portiekflat met 2 slaapkamers op de 3e woonlaag in Corpus den Hoorn, in het zuiden van de stad. Deze woning is te bereiken met een lift en via de trap en heeft een balkon. De woning beschikt over 2 bergingen. U woont dichtbij winkels en uitvalswegen. In deze woning vindt een keuken-, badkamer- en w.c. renovatie plaats.De huuringangsdatum is 26 januari 2026. Minimaal inkomen voor deze woning:• geen eisenMaximaal inkomen voor deze woning (dit geldt niet voor wijkvernieuwingsurgenties en rolstoelindicaties):• Voor 1 persoon € 51.537,-• Voor 2 of meer personen € 56.910,-Meer algemene informatie over inkomensregels vind je hier.
Kenmerken
Type:
Woonruimte
Aantal kamers:
3
Vertrekken
Toilet
0.93 m²
Badkamer
2.92 m²
Keuken
5.39 m²
Berging
5.60 m²
Berging
7.25 m²
Slaapkamer
10.99 m²
Slaapkamer
11.76 m²
Woonkamer
19.20 m²
Vergelijkbare woningen
Appartement - Naberstraat/Groningen (€2450.00/110.00m2)
Groningen
€2.450
3 kamers
Huurwoning - Pioenstraat/Groningen (€2155.00/149.00m2)
Groningen
€2.155
6 kamers
Huurwoning - Hyacinthstraat/Groningen (€2155.00/127.00m2)
Groningen
€2.155
5 kamers
Studio - Coendersweg/Groningen (€840.00/24.00m2)
Groningen
€840
1 kamers
Geen foto
Kamer - Hoekstraat/Groningen (€850.00/19.98m2)
Groningen
€850
1 kamers
Huurwoning - Hondsruglaan/Groningen (€2900.00/178.00m2)
Groningen
€2.900
5 kamers
Meer woningen bekijken?
Ontdek ons volledige aanbod van huurwoningen in Nederland. Van studio's tot gezinswoningen.