Bloedkoraalstraat 25 - Groningen
📍 Groningen
🚪 2 kamers
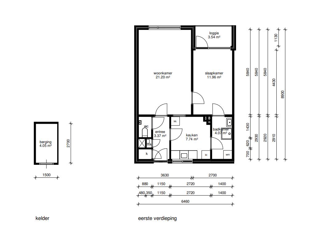
Leuke woning met 1 slaapkamer en een zolder op de tweede woonlaag in de groene wijk Vinkhuizen. De woning heeft een loggia. U woont dichtbij het winkelcentrum, openbaar vervoer en uitvalswegen.De nieuwe huuringangsdatum is 17 maart 2026.In deze woning kan alleen elektrisch gekookt worden. U bent zelf verantwoordelijk voor een geschikte kookplaat en pannen.Minimaal inkomen voor deze woning:• geen eisenMaximaal inkomen voor deze woning (dit geldt niet voor wijkvernieuwingsurgenties en rolstoelindicaties):• Voor 1 persoon € 51.537,-• Voor 2 of meer personen € 56.910,-
Kenmerken
Type:
Woonruimte
Aantal kamers:
2
Energielabel:
C
Vertrekken
Toilet
1.26 m²
Berging
4.05 m²
Badkamer
4.07 m²
Keuken
7.74 m²
Slaapkamer
11.96 m²
Woonkamer
21.20 m²
Vergelijkbare woningen
Appartement - Naberstraat/Groningen (€2450.00/110.00m2)
Groningen
€2.450
3 kamers
Huurwoning - Pioenstraat/Groningen (€2155.00/149.00m2)
Groningen
€2.155
6 kamers
Huurwoning - Hyacinthstraat/Groningen (€2155.00/127.00m2)
Groningen
€2.155
5 kamers
Studio - Coendersweg/Groningen (€840.00/24.00m2)
Groningen
€840
1 kamers
Geen foto
Kamer - Hoekstraat/Groningen (€850.00/19.98m2)
Groningen
€850
1 kamers
Huurwoning - Hondsruglaan/Groningen (€2900.00/178.00m2)
Groningen
€2.900
5 kamers
Meer woningen bekijken?
Ontdek ons volledige aanbod van huurwoningen in Nederland. Van studio's tot gezinswoningen.