Boelemaheerd 104 - Groningen
📍 Groningen
🚪 3 kamers
Leuke portiekwoning met 2 slaapkamers en een balkon in de groene wijk Beijum. De woning bevindt zich op de tweede en middelste woonlaag van het complex. In de directe omgeving zijn diverse voorzieningen te vinden, waaronder scholen, winkels en openbaar vervoer. De oostelijke ringweg is vanuit hier goed bereikbaar. Op de fiets bent u in 20 minuten in de stad. In de woning vindt een badkamer renovatie plaats.De nieuwe huuringangsdatum is per 13 februari 2026.Beijum-Oost is onderdeel van wijkvernieuwing. Er wordt gestreefd naar een diverse wijk. Mensen met een inkomen tussen € 51.537 en € 70.149 voor een eenpersoonshuishouden en tussen € 56.910 en € 93.531 voor een meerpersoonshuishouden, komen als eerst in aanmerking voor deze woning. Heeft u verdere vragen over de regeling, dan kunt u naar: Wijkvernieuwing op z’n Gronings - Wijkvernieuwing Groningen
Kenmerken
Type:
Woonruimte
Aantal kamers:
3
Energielabel:
A+
Vertrekken
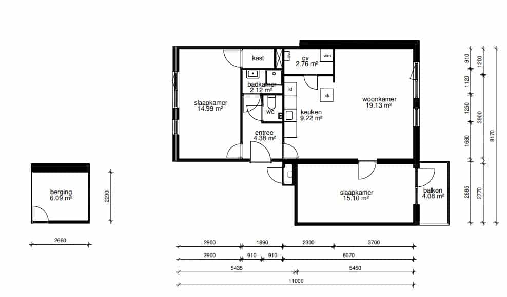
Toilet
1.14 m²
Badkamer
2.12 m²
Berging
6.09 m²
Keuken
9.22 m²
Slaapkamer
14.99 m²
Slaapkamer
15.10 m²
Woonkamer
19.13 m²
Vergelijkbare woningen
Appartement - Naberstraat/Groningen (€2450.00/110.00m2)
Groningen
€2.450
3 kamers
Huurwoning - Pioenstraat/Groningen (€2155.00/149.00m2)
Groningen
€2.155
6 kamers
Huurwoning - Hyacinthstraat/Groningen (€2155.00/127.00m2)
Groningen
€2.155
5 kamers
Studio - Coendersweg/Groningen (€840.00/24.00m2)
Groningen
€840
1 kamers
Geen foto
Kamer - Hoekstraat/Groningen (€850.00/19.98m2)
Groningen
€850
1 kamers
Huurwoning - Hondsruglaan/Groningen (€2900.00/178.00m2)
Groningen
€2.900
5 kamers
Meer woningen bekijken?
Ontdek ons volledige aanbod van huurwoningen in Nederland. Van studio's tot gezinswoningen.