Brouwersvaart 24A - Haarlem
📍 Haarlem
🚪 2 kamers
📐 59.00 m²
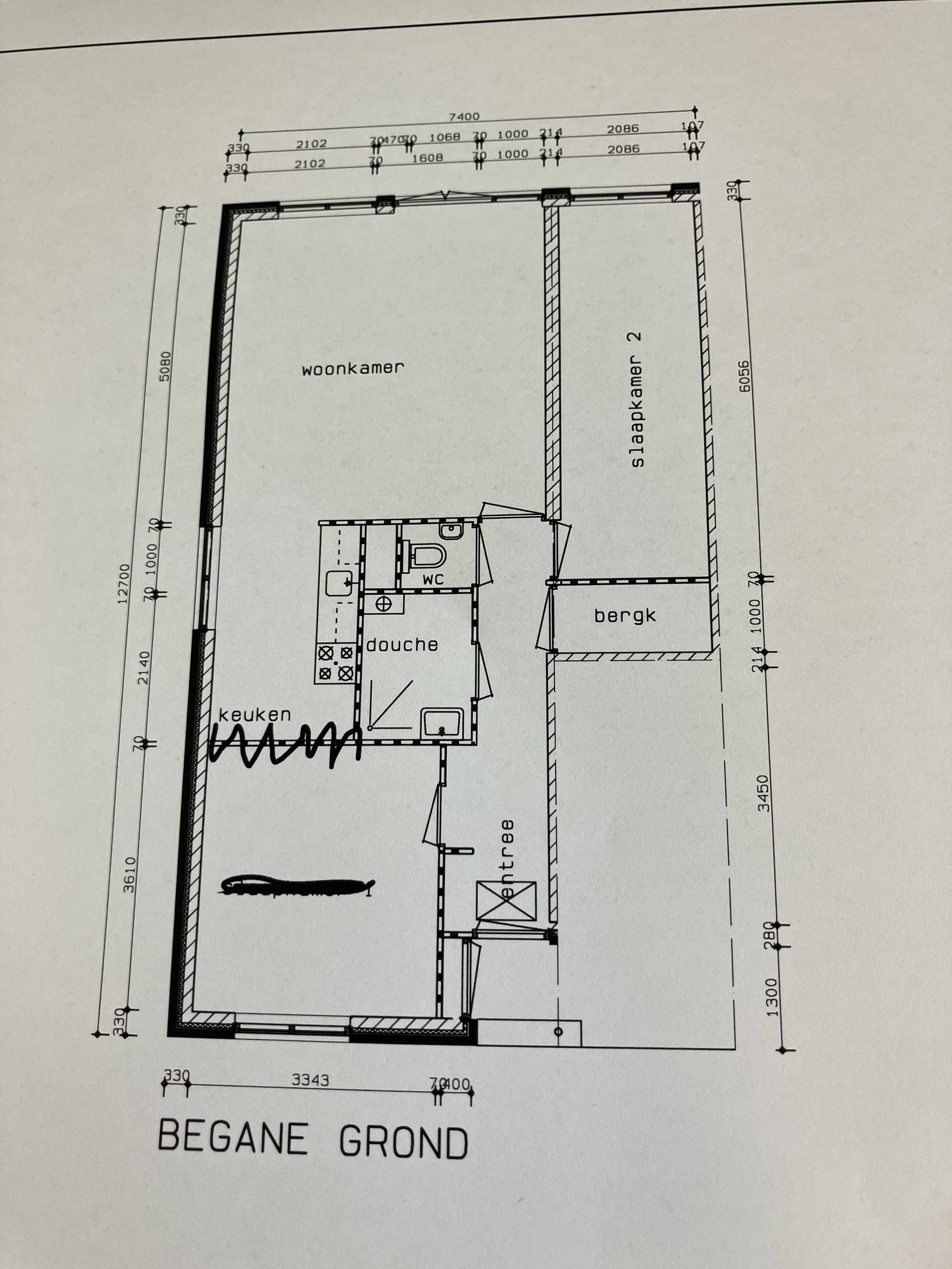
Licht tweekamer hoekbenedenwoning met grote woonkamer met toegang naar achtertuin, open keuken. Slaapkamer, toilet met fonteintje, badkamer met opstelling wasmachine en cv-ketel, bergkast. Algemene fietsenberging in binnentuin.De badkamer is gerenoveerd. Schenking aan de nieuwe huurder. Onderhoud huurder: RaamdecoratieWoning - Elektrisch koken- Open keuken- Apart toilet met fonteintje- Achtertuin van 15 m2- Betaald parkeren in de straatHet Zijlwegkwartier ligt aan de Randweg tussen Overveen en het centrum van Haarlem. Het is een mix van oud en nieuw, laag en hoogbouw. Het is een populaire wijk voor studenten door o.a. het Nova college en studenten woningen. Deze wijk ligt op fietsafstand van zowel het strand als het bruisende en historische centrum van Haarlem. Hier vindt u vele winkels, restaurants en musea. Parkeren is veel al gratis, maar de straten rondom het centrum zijn wel betaald. Let er dus goed op of uw straat betaald parkeren is of niet. Wat betreft het openbaar vervoer kunt u gebruikmaken van de bushaltes in de directe omgeving en treinstation op ongeveer 10 min fietsen. Via de randweg kunt u met de auto binnen 20 minuten naar de snelweg richting Amsterdam, Alkmaar en Den-haag. Uitnodiging tot bezichtiging De eerste tien kandidaten worden via woonservice uitgenodigd voor bezichtiging.- De bezichtiging is ingepland op 13 November om 14:15 uur (onder voorbehoud)Een woning huren van Pré WonenIedere woning van Pré Wonen wordt volgens de basiskwaliteit opgeleverd. Zelf knapt u de woning op naar uw zin en smaak. Denk hierbij aan het leggen van vloeren (minimaal 10 decibel reducerend), schilderen/behangen van muren, deuren, (raam)kozijnen en plafonds. Een bestaande woning heeft altijd gebruikssporen van voorgaande huurder(s). Kijkt u onder Voorwaarden bij ‘Wat mag u van een woning van Pré Wonen verwachten’. Daar leest u wat de basiskwaliteit is en wat u van een woning van Pré Wonen mag verwachten.Tot slotDe oplevering van de woning kan afwijken van de advertentietekst, de plattegrond, de foto’s en de bezichtiging in verband met eventuele werkzaamheden.Aan deze advertentie kunt u geen rechten ontlenen.
Kenmerken
Type:
Woonruimte
Oppervlakte:
59.00 m²
Aantal kamers:
2
Energielabel:
B
Vertrekken
Slaapkamer
13.00 m²
Woonkamer
44.00 m²
Vergelijkbare woningen
Appartement - Vijfhuizerstraat/Haarlem (€2150.00/71.00m2)
Haarlem
€2.150
2 kamers
Studio - Willem van Ospark/Haarlem (€850.00/49.00m2)
Haarlem
€850
2 kamers
Appartement - Gedempte Oude Gracht/Haarlem (€2650.00/95.00m2)
Haarlem
€2.650
4 kamers
Huurwoning - Van't Hoffstraat/Haarlem (€2995.00/125.00m2)
Haarlem
€2.995
6 kamers
Appartement - Amerikaweg/Haarlem (€1715.00/86.00m2)
Haarlem
€1.715
3 kamers
Appartement - Victor van Vrieslandstraat/Haarlem (€1025.00/50.00m2)
Haarlem
€1.025
2 kamers
Meer woningen bekijken?
Ontdek ons volledige aanbod van huurwoningen in Nederland. Van studio's tot gezinswoningen.