Burgemeester Nawijnlaan 109 - Zandvoort
📍 Zandvoort
🚪 3 kamers
OmschrijvingHet betreft een 3-kamer hoekwoning (zo) met eigen terras gericht op het oosten, vrij uitkijkend op de gemeenschappelijke tuin met speelplaats van het kinderdagverblijf. De woning bevindt zich op de begane grond van het hoogbouw wooncomplex.Het complexAan de rand van Zandvoort vindt u het wooncentrum Kostverloren. Het wooncentrum ligt aan de Burgemeester Nawijnlaan en Jnkh. PN Quarles van Uffordlaan in een mooie rustige omgeving en grenst aan de duinen.Het wooncentrum bestaat uit 103 appartementen, verdeeld over laag- en hoogbouw. De laagbouw heeft een of twee etages, de woningen hebben een eigen terras of balkon. De hoogbouw heeft vier etages, de woningen hebben gemeenschappelijke balkons gericht op het zuiden, geen individuele balkons. Er bevinden zich 6 begane grond woningen met eigen terras.Alle woningen beschikken over een gemeenschappelijke fietsen- en scootmobielstalling. In het wooncentrum is een recreatieruimte en zorgkantoor aanwezig.In het nabijgelegen woonzorgcentrum Huis in de Duinen kunt u gebruik maken van diverse voorzieningen zoals het paviljoen.Zandvoort biedt vele mogelijkheden, een breed en schoon strand, mooie duinen, maar ook een gezellig winkelcentrum met leuke terrasjes. Ook beschikt het over een treinstation.
Kenmerken
Type:
Woonruimte
Aantal kamers:
3
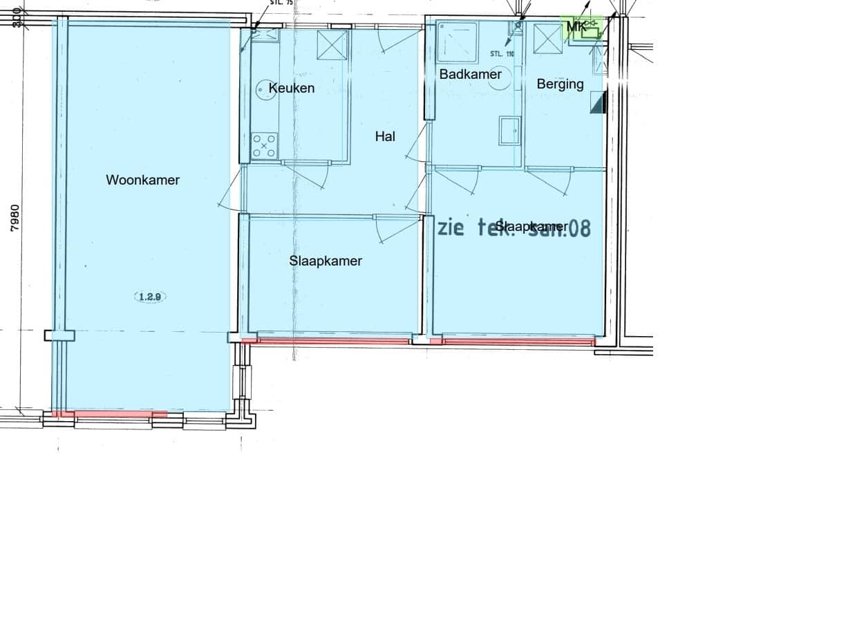
Vertrekken
Badkamer
5.15 m²
Berging
5.49 m²
Keuken
5.80 m²
Slaapkamer
8.74 m²
Slaapkamer
12.35 m²
Woonkamer
28.89 m²
Vergelijkbare woningen
Huurwoning - Herman Heijermansweg/Zandvoort (€9500.00/257.00m2)
Zandvoort
€9.500
6 kamers
Woning aan de Hooikade te Den Haag
Den Haag
€3.590
3 kamers
Woning aan de Amsterdamsestraat te Muiden
Muiden
€1.750
2 kamers
Woning aan de Pannesheiderstraat te Kerkrade
Kerkrade
€380
1 kamers
Woning aan de Maaskade te Rotterdam
Rotterdam
€2.350
3 kamers
Woning aan de Markt te Roosendaal
Roosendaal
€650
1 kamers
Meer woningen bekijken?
Ontdek ons volledige aanbod van huurwoningen in Nederland. Van studio's tot gezinswoningen.