Coehoornsingel 107 - Groningen
📍 Groningen
🚪 3 kamers
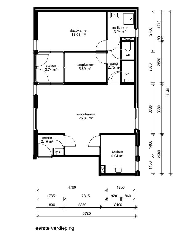
Leuke woning met 2 slaapkamers (waarvan 1 hele kleine) en een balkon. De woning ligt op de 2e woonlaag. Hier woont u in het gezellige centrum en toch redelijk rustig. In de omgeving bevinden zich diverse voorzieningen, waaronder winkels en het station dat op loopafstand ligt. De woning is per 22 april 2026 te huur.Minimaal inkomen voor deze woning:• geen eisenMaximaal inkomen voor deze woning (dit geldt niet voor wijkvernieuwingsurgenties en rolstoelindicaties):• Voor 1 persoon € 51.537,-• Voor 2 of meer personen € 56.910,-
Kenmerken
Type:
Woonruimte
Aantal kamers:
3
Energielabel:
A
Vertrekken
Toilet
1.30 m²
Badkamer
3.24 m²
Slaapkamer
5.89 m²
Keuken
6.24 m²
Slaapkamer
12.69 m²
Woonkamer
25.87 m²
Vergelijkbare woningen
Appartement - Naberstraat/Groningen (€2450.00/110.00m2)
Groningen
€2.450
3 kamers
Huurwoning - Pioenstraat/Groningen (€2155.00/149.00m2)
Groningen
€2.155
6 kamers
Huurwoning - Hyacinthstraat/Groningen (€2155.00/127.00m2)
Groningen
€2.155
5 kamers
Studio - Coendersweg/Groningen (€840.00/24.00m2)
Groningen
€840
1 kamers
Geen foto
Kamer - Hoekstraat/Groningen (€850.00/19.98m2)
Groningen
€850
1 kamers
Huurwoning - Hondsruglaan/Groningen (€2900.00/178.00m2)
Groningen
€2.900
5 kamers
Meer woningen bekijken?
Ontdek ons volledige aanbod van huurwoningen in Nederland. Van studio's tot gezinswoningen.