Damsterdiep 269-137 - Groningen
📍 Groningen
🚪 1 kamers
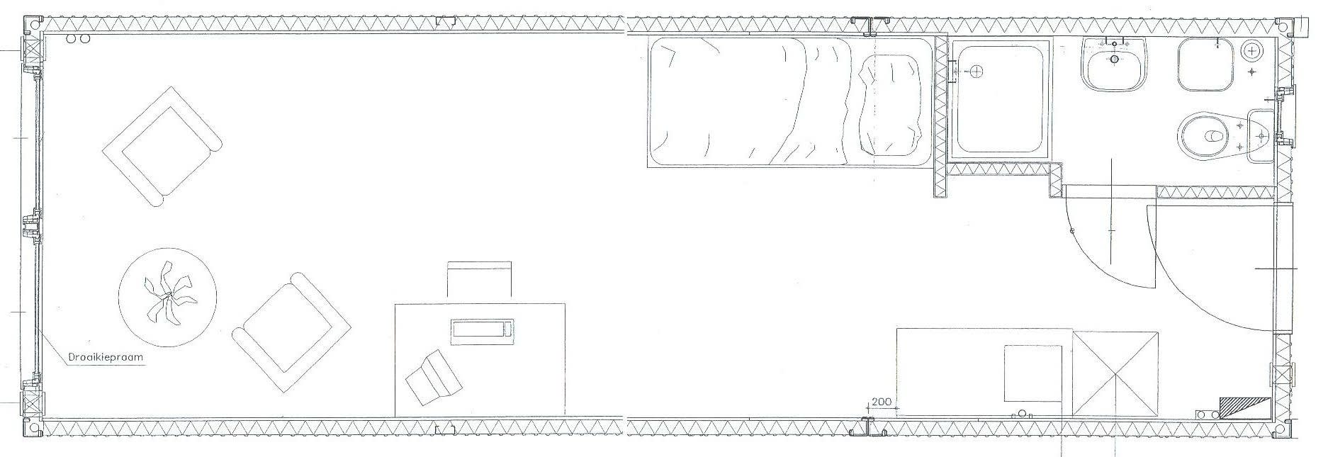
📐 23.28 m²
LET OP: Voordat je een woning gaat huren, adviseren we je om een offerte op te vragen voor de energiekosten bij een energieleverancier. Houd hierbij rekening met het energielabel van de woning, dit kan invloed hebben op je verbruik. Met deze informatie kun je beter inschatten wat je totale vaste lasten worden voor de aangeboden woning.Te huur tot 1 oktober 2026 – voor 1 persoonDeze woning huur je tijdelijk. Dat betekent dat je geen urgentie kunt aanvragen op het moment dat je de woning moet verlaten.Je gaat zelf op zoek naar andere woonruimte.De studio is 9 meter lang en 3 meter breed en wordt verwarmd en gekoeld via een individuele warmtepomp. De studio is voor 1 persoon. Je kookt elektrisch. Er is een gezamenlijke afgesloten fietsenstalling en er zijn ondergrondse vuilcontainers aanwezig. Er is geen wasmachine- en telefoonaansluiting. In de huurprijs is een radio- en tv-signaal inbegrepen, internet kan je alleen via Ziggo aanvragen. De bruto huurprijs is inclusief een voorschot voor water en elektra, je hebt een eigen water- en elektrameter. Je hoeft je niet apart bij een energieleverancier of waterbedrijf aan te melden. Honden en katten zijn niet toegestaan in de studio. Inschrijving WoningNetJe behoudt je inschrijving, met behoud van de oorspronkelijke inschrijfdatum. Je kan hiermee zelf op zoek gaan naar een nieuwe woning.InkomenseisMinimaal inkomen voor deze woning:• geen eisenMaximaal inkomen voor deze woning (dit geldt niet voor wijkvernieuwingsurgenties en rolstoelindicaties):• Voor 1 persoon € 49.669,-Meer algemene informatie over inkomensregels vind je hier.ZonnepanelenOp het dak van de studio’s zijn zonnepanelen geplaatst. Daar heb je als huurder direct voordeel van, want de opbrengst wordt jaarlijks gelijk verdeeld over alle studio’s. Je hoeft hiervoor zelf niets te regelen. De zonnepanelen zorgen dus voor een besparing op je energierekening.ParkerenEr is beperkte parkeergelegenheid bij de studio’s. Meer informatie over parkeren in de wijk is hier te vinden. De advertentie is gewijzigd op 05-11-2025 21:04:49.
Kenmerken
Type:
Woonruimte
Oppervlakte:
23.28 m²
Aantal kamers:
1
Energielabel:
B
Vertrekken
Woonkamer
21.00 m²
Vergelijkbare woningen
Appartement - Naberstraat/Groningen (€2450.00/110.00m2)
Groningen
€2.450
3 kamers
Huurwoning - Pioenstraat/Groningen (€2155.00/149.00m2)
Groningen
€2.155
6 kamers
Huurwoning - Hyacinthstraat/Groningen (€2155.00/127.00m2)
Groningen
€2.155
5 kamers
Studio - Coendersweg/Groningen (€840.00/24.00m2)
Groningen
€840
1 kamers
Geen foto
Kamer - Hoekstraat/Groningen (€850.00/19.98m2)
Groningen
€850
1 kamers
Huurwoning - Hondsruglaan/Groningen (€2900.00/178.00m2)
Groningen
€2.900
5 kamers
Meer woningen bekijken?
Ontdek ons volledige aanbod van huurwoningen in Nederland. Van studio's tot gezinswoningen.