+2
Di Lassostraat 6513 - Soest
📍 Soest
🚪 3 kamers
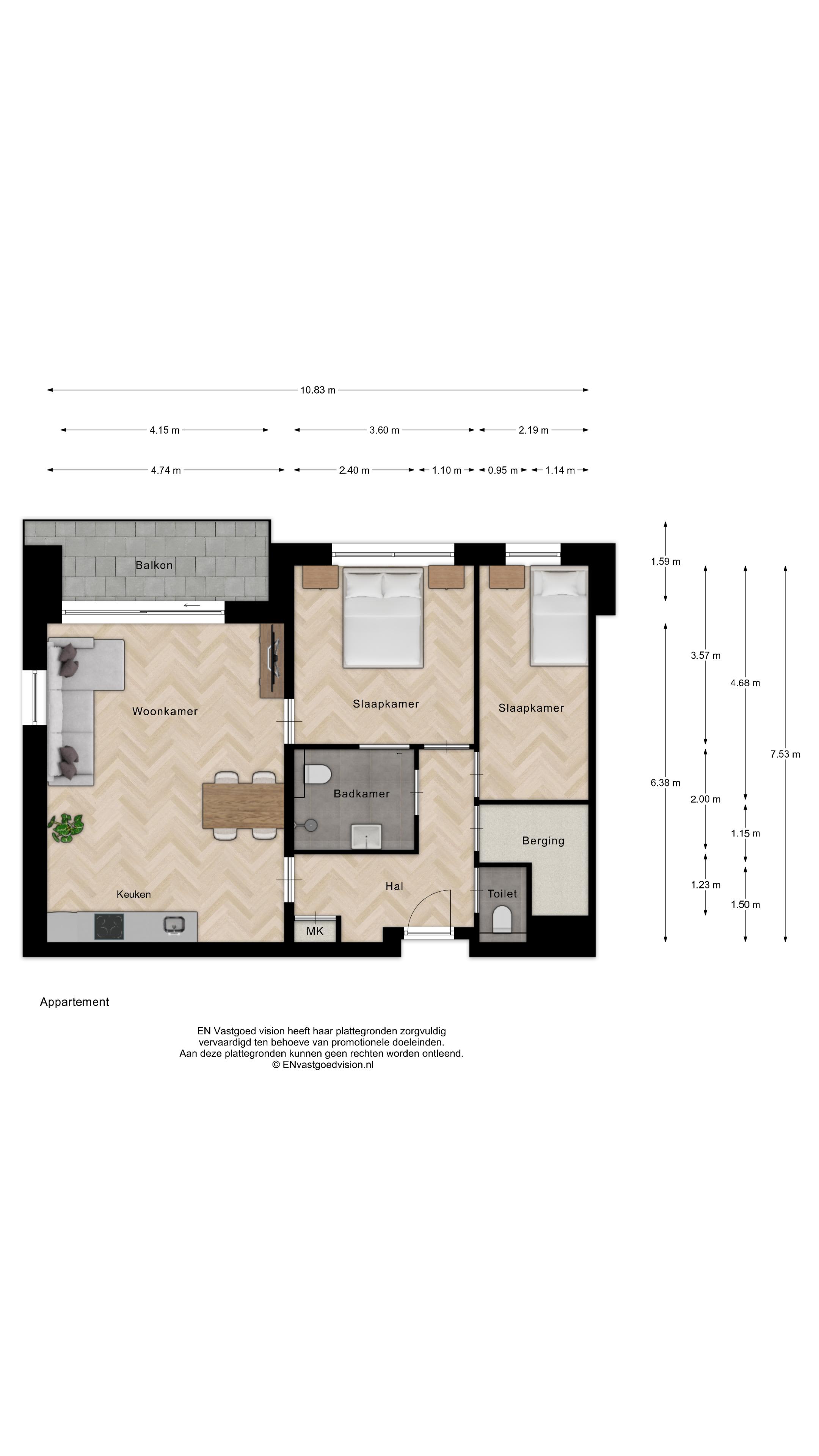
DocumentenWordt u uitgenodigd voor de bezichtiging of ontvangt u een aanbieding? Zorg er dan voor dat u alvast de benodigde documenten aanvraagt! Het aanvragen van een BRP bij de gemeente of andere papieren kan namelijk een paar dagen duren. Omdat wij met vaste deadlines werken voor het aanleveren van gegevens, is het belangrijk dat je dit niet te lang uitstelt. Bekijk hier welke documenten u in uw situatie nodig heeft: Benodigde documenten - OmthuisGebouwWoongebouw Andante ligt aan de Di Lassostraat midden in de woonwijk Overhees. Het winkelcentrum, gezondheidscentrum en bushalte bevinden zich op loopafstand.Het woongebouw bestaat 50 appartementen verdeeld over vier woonlagen. De 50 woningen zijn opgesplitst in 28 woningen in de sociale huur en 22 woningen in de midden huur. De woningen op de begane grond hebben een tuin en de woningen op de eerste, tweede en derde etage hebben een balkon. Het woongebouw is middels een corridor verbonden aan ons woongebouw De Vijverhof. Tussen De Vijverhof en Andante wordt een mooie binnentuin aangelegd.Bij de hoofdingang bevinden zich de brievenbussen, het bellenbord, het trappenhuis en de lift. Bewoners kunnen gebruik maken van een gedeelde fietsenberging. Aan beide kanten van het woongebouw zit een scootmobielruimte. Ook is er een ontmoetingsruimte waar activiteiten kunnen worden georganiseerd.De appartementen verschillen iets in grootte, maar hebben allemaal één ding gemeen: Goede isolatie voor een aangenaam binnenklimaat. Een ventilatie-warmtepomp die zorgt voor frisse lucht, verwarming én warmwater en vloerverwarming in het hele appartement. Ook zijn alle appartementen voorzien van persoonsalarmering welke in verbinding staan met de zorg. Hier woont u niet alleen mooi, maar ook slim, duurzaam en veilig.WoningAlle appartementen hebben een woonkamer met open keuken. De woning heeft twee slaapkamers, een badkamer met toilet en in de hal een apart toilet. Ook heeft de woning een inpandige berging en een balkon. Het balkon is via de woonkamer bereiken. In de badkamer bevindt zich een handdoeken radiator. De keuken is voorzien van een hoge kast waar u uw koelkast kunt inbouwen, een kookplaat (elektrisch) en een recirculatie afzuigkap. Verder zijn er voorbereidingen getroffen voor het aansluiten van een vaatwasser. In de inpandige berging bevindt zich de wasmachineaansluiting.Vloeren   De vloer in de woning moet je zelf nog aanbrengen. De vloer moet geschikt zijn voor vloerverwarming. Het aanbrengen van een ondervloer minimaal 10 decibel geluidswerend is verplicht. Houdt er rekening mee dat de vloerafwerking niet meer dan 15mm mag zijn, inclusief onderlaag. Plavuizen, gietvloeren, plak PVC en houten vloeren zijn niet toegestaan. Laminaat, klik PVC of vloerbedekking wel. ParkerenNaast het woongebouw ligt een openbaar parkeerterrein waar bewoners gebruik van kunnen maken.ServicekostenNaast de huurprijs betaalt u ook servicekosten, dit is een voorschot. Denk hierbij aan elektriciteit en schoonmaak van de algemene ruimte en tuinonderhoud. Wij proberen het maandelijkse voorschot zo goed mogelijk vast te stellen. De servicekosten zullen het eerste jaar €107,70 bedragen. Na afloop van het kalenderjaar krijgt u van ons een afrekening. Het kan zijn dat u moet bijbetalen of dat u een bedrag terugkrijgt. Let op: Jaarlijks per 1 juli wijzigt de huur! Voor deze woning gelden de volgende wijzigingen:De netto huur stijgt naar € 1282,10Hoe verder na inschrijving?De eerste kandidaten ontvangen een email waarin een digitale bezichtiging wordt aangeboden. Indien je kans wilt maken op de woning dien je de woning voorlopig te accepteren. Daarna volgt voor kandidaat nummer een de uitnodiging voor het insturen van de documenten. Na controle en akkoord van de documenten word je gefeliciteerd als nieuwe huurder! Ook nodigen wij je later uit voor een kijk en meet moment. Let op, voor acceptatie vinden er geen bezichtigingen plaats.LET OP! Het betreden van de bouwplaats is NIET toegestaan!Meer informatieMocht u meer informatie over binding, van Groot naar Beter of passend toewijzen zoeken, kijk dan op: www.omthuis.nl/andante.
Kenmerken
Type:
Woonruimte
Aantal kamers:
3
Energielabel:
A+++
Vertrekken
Toilet
1.20 m²
Berging
4.30 m²
Badkamer/toilet
4.80 m²
Hal
7.60 m²
Slaapkamer
10.20 m²
Slaapkamer
12.90 m²
Woonkamer/keuken
30.20 m²
Vergelijkbare woningen
Huurwoning - Chalonhof/Soest (€3500.00/219.00m2)
Soest
€3.500
6 kamers
Appartement - Varenstraat/Soest (€1500.00/60.00m2)
Soest
€1.500
1 kamers
Woning aan de Hooikade te Den Haag
Den Haag
€3.590
3 kamers
Woning aan de Amsterdamsestraat te Muiden
Muiden
€1.750
2 kamers
Woning aan de Pannesheiderstraat te Kerkrade
Kerkrade
€380
1 kamers
Woning aan de Maaskade te Rotterdam
Rotterdam
€2.350
3 kamers
Meer woningen bekijken?
Ontdek ons volledige aanbod van huurwoningen in Nederland. Van studio's tot gezinswoningen.