Dorpsplein 87 - Soesterberg
📍 Soesterberg
🚪 2 kamers
Belangrijke informatie: Het woongebouw staat gepland voor sloop en nieuwbouw in de toekomst. Er is nog geen exacte startdatum bekend. De verwachting is dat dit traject nog een aantal jaren zal duren voordat de sloopwerkzaamheden starten. Huurders worden hiervan tijdig op de hoogte gesteld en begeleid bij eventuele herhuisvesting.Dorpsplein 87 ligt in woongebouw “De Drie Eiken” gelegen aan het Dorpsplein, op steenworp afstand van een winkelcentrum, bushalte en uitvalswegen.Het woongebouw heeft 87 appartementen met aan de voorzijde een zonnig balkon over de hele breedte van het appartement. Het woongebouw is omgeven door een aangelegde tuin. Aan de achterzijde is een jeu-de-boules-baan aangelegd. Alle appartementen zijn toegankelijk met een rolstoel. Een renovatie van het woongebouw is in voorbereiding.Omthuis verhuurt woningen voor senioren vanaf 65 jaar. Met zaken die wonen net even wat makkelijker maken: een huismeester, persoonsalarmering, ontmoetingscentrum en een actieve bewonerscommissie. Huurtoeslag is mogelijk afhankelijk van het inkomen. Geen meeverhuizende kinderen mogelijk.Voor meer informatie: www.omthuis.nl
Kenmerken
Type:
Woonruimte
Aantal kamers:
2
Energielabel:
C
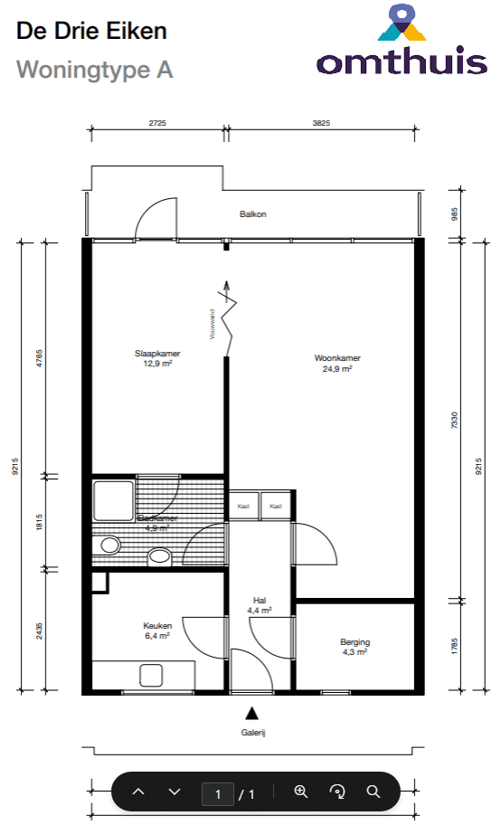
Vertrekken
Berging
4.30 m²
Hal
4.40 m²
Badkamer/toilet
4.95 m²
Keuken
6.40 m²
Slaapkamer
12.90 m²
Woonkamer
24.90 m²
Vergelijkbare woningen
Studio - Rademakerstraat/Soesterberg (€671.00/26.00m2)
Soesterberg
€671
1 kamers
Woning aan de Hooikade te Den Haag
Den Haag
€3.590
3 kamers
Woning aan de Amsterdamsestraat te Muiden
Muiden
€1.750
2 kamers
Woning aan de Pannesheiderstraat te Kerkrade
Kerkrade
€380
1 kamers
Woning aan de Maaskade te Rotterdam
Rotterdam
€2.350
3 kamers
Woning aan de Markt te Roosendaal
Roosendaal
€650
1 kamers
Meer woningen bekijken?
Ontdek ons volledige aanbod van huurwoningen in Nederland. Van studio's tot gezinswoningen.