Driemolendrift 6A - Groningen
📍 Groningen
🚪 2 kamers
Leuke bovenwoning woning met 1 slaapkamer in een rustige straat van het centrum. De woning bevindt zich op de tweede woonlaag. U woont hier heel centraal. In de directe omgeving zijn diverse voorzieningen te vinden, waaronder winkels en het station dat op loopafstand ligt. De nieuwe huuringangsdatum is per 23 maart 2026.Minimaal inkomen voor deze woning:• geen eisenMaximaal inkomen voor deze woning (dit geldt niet voor wijkvernieuwingsurgenties en rolstoelindicaties):• Voor 1 persoon € 51.537,-• Voor 2 of meer personen € 56.910,-Meer algemene informatie over inkomensregels vind je hier.
Kenmerken
Type:
Woonruimte
Aantal kamers:
2
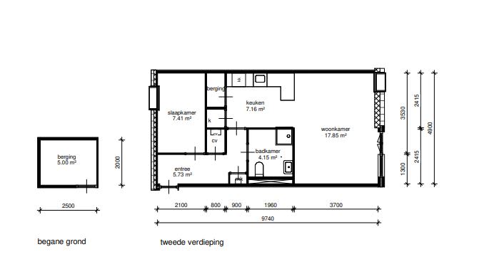
Vertrekken
Berging
5.00 m²
Keuken
7.16 m²
Slaapkamer
7.41 m²
Woonkamer
17.85 m²
Vergelijkbare woningen
Appartement - Naberstraat/Groningen (€2450.00/110.00m2)
Groningen
€2.450
3 kamers
Huurwoning - Pioenstraat/Groningen (€2155.00/149.00m2)
Groningen
€2.155
6 kamers
Huurwoning - Hyacinthstraat/Groningen (€2155.00/127.00m2)
Groningen
€2.155
5 kamers
Studio - Coendersweg/Groningen (€840.00/24.00m2)
Groningen
€840
1 kamers
Geen foto
Kamer - Hoekstraat/Groningen (€850.00/19.98m2)
Groningen
€850
1 kamers
Huurwoning - Hondsruglaan/Groningen (€2900.00/178.00m2)
Groningen
€2.900
5 kamers
Meer woningen bekijken?
Ontdek ons volledige aanbod van huurwoningen in Nederland. Van studio's tot gezinswoningen.