Drouwlaan 12 - Wageningen
📍 Wageningen
🚪 4 kamers
Deze leuke hoekwoning ligt aan de Crocusstraat. De woningen zijn wat ouder en daardoor gehoriger. Het centrum van Wageningen bereikt u in een paar minuten fietsen.
Kenmerken
Type:
Woonruimte
Aantal kamers:
4
Energielabel:
A
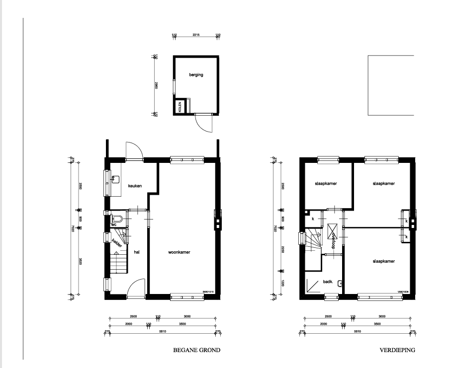
Vertrekken
Badkamer
3.00 m²
Slaapkamer
6.18 m²
Keuken
6.31 m²
Berging
6.63 m²
Slaapkamer
10.83 m²
Slaapkamer
12.03 m²
Woonkamer
23.12 m²
Vergelijkbare woningen
Huurwoning - Veerstraat/Wageningen (€1808.00/104.00m2)
Wageningen
€1.808
5 kamers
Appartement - Thorbeckestraat/Wageningen (€2100.00/69.00m2)
Wageningen
€2.100
4 kamers
Woning aan de Hooikade te Den Haag
Den Haag
€3.590
3 kamers
Woning aan de Amsterdamsestraat te Muiden
Muiden
€1.750
2 kamers
Woning aan de Pannesheiderstraat te Kerkrade
Kerkrade
€380
1 kamers
Woning aan de Maaskade te Rotterdam
Rotterdam
€2.350
3 kamers
Meer woningen bekijken?
Ontdek ons volledige aanbod van huurwoningen in Nederland. Van studio's tot gezinswoningen.