Erasmusweg 23 - Reeuwijk
📍 Reeuwijk
🚪 4 kamers
📐 91.50 m²
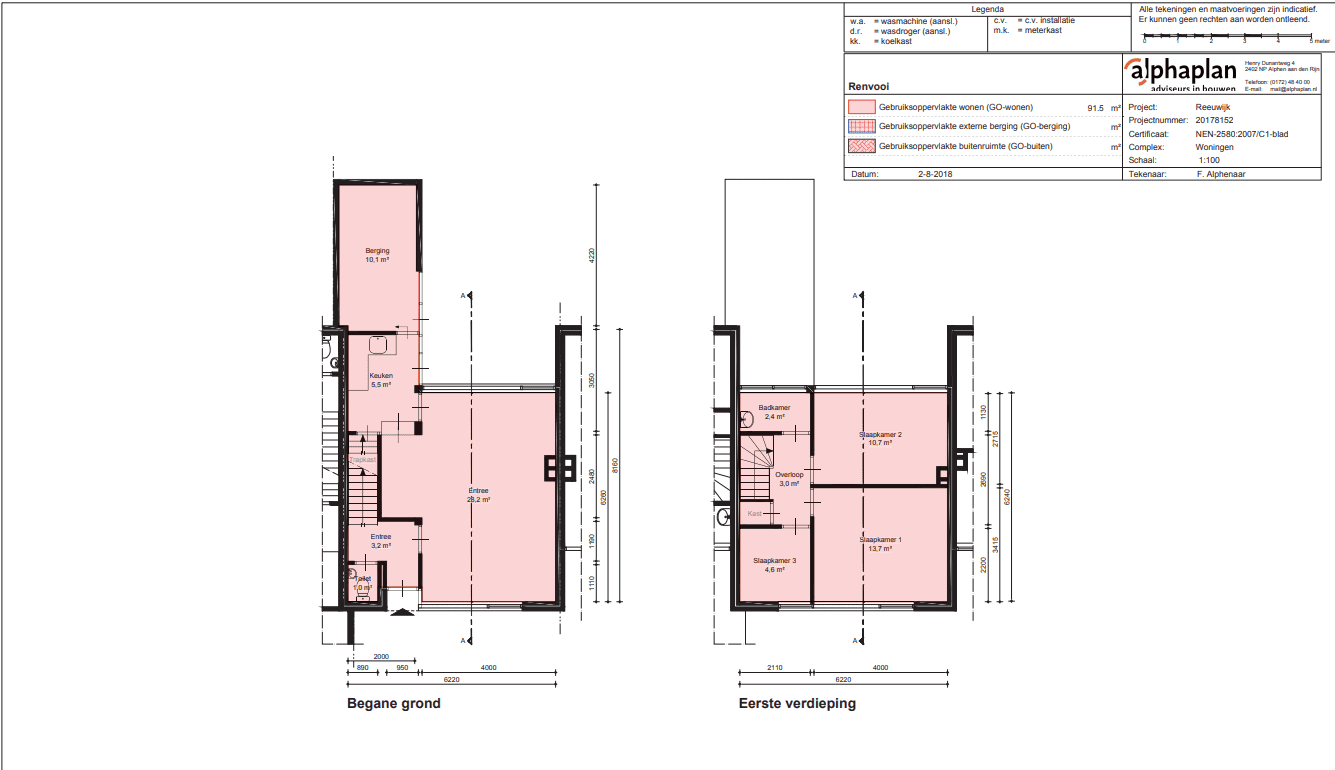
Wijk Reeuwijk - BrugGelegen in Reeuwijk, vlak bij het natuurgebied van de Reeuwijkse plassen, en het centrum van Reeuwijk met voorzieningen zoals het winkelgebied, zwembad, sporthal, op loop- en fietsafstand openbaar vervoer (bus).Indeling woningNette woning met 3 slaapkamers, berging en riante voor- en achtertuin.Bijzondere kenmerkenEr is een aansluiting aanwezig om elektrisch te koken.Doorstromers genieten de voorrang. Deze woning is bestemd voor meerpersoonshuishoudens: het huishouden van twee of meer personen die gezamenlijk een woonruimte bewonen of willen gaan bewonen, waarbij sprake is van continuïteit in samenstelling en onderlinge verbondenheid.Let opHoudt u er rekening mee dat tijdens het tekenen van het contract ingelogd moet worden op de website van de Belastingdienst. Dit doen we met uw inloggegevens van uw DigiD. Deze moet u dan bij u hebben.MyQii: veilig, makkelijk en snel uw gegevens aanleverenHet is mogelijk om uw gegevens veilig en snel aan te leveren met uw DigiD. WoningNet werkt hiervoor samen met MyQii. Met MyQii haalt u rechtstreeks uw persoonsgegevens op bij de Belastingdienst, MijnOverheid en het UWV. Heeft u nog geen MyQii? Maak deze dan vandaag nog aan en nodig eventueel uw medebewoners ook uit om mee te doen. Bij een woningtoewijzing weet u zeker dat u de juiste gegevens al verzameld heeft. Dat scheelt tijd en voorkomt teleurstellingen. Ga direct naar inloggen en klik op Ja ik doe mee!
Kenmerken
Type:
Woonruimte
Oppervlakte:
91.50 m²
Aantal kamers:
4
Energielabel:
B
Vertrekken
Badkamer
2.40 m²
Slaapkamer
4.70 m²
Keuken
6.40 m²
Berging
9.90 m²
Slaapkamer
11.30 m²
Slaapkamer
13.90 m²
Woonkamer
27.40 m²
Vergelijkbare woningen
Huurwoning - Platteweg/Reeuwijk (€2550.00/102.00m2)
Reeuwijk
€2.550
4 kamers
Appartement - Dorpsweg/Reeuwijk (€1380.00/54.00m2)
Reeuwijk
€1.380
1 kamers
Woning aan de Hooikade te Den Haag
Den Haag
€3.590
3 kamers
Woning aan de Amsterdamsestraat te Muiden
Muiden
€1.750
2 kamers
Woning aan de Pannesheiderstraat te Kerkrade
Kerkrade
€380
1 kamers
Woning aan de Maaskade te Rotterdam
Rotterdam
€2.350
3 kamers
Meer woningen bekijken?
Ontdek ons volledige aanbod van huurwoningen in Nederland. Van studio's tot gezinswoningen.