Esdoornlaan 121 - Groningen
📍 Groningen
🚪 3 kamers
📐 54.06 m²
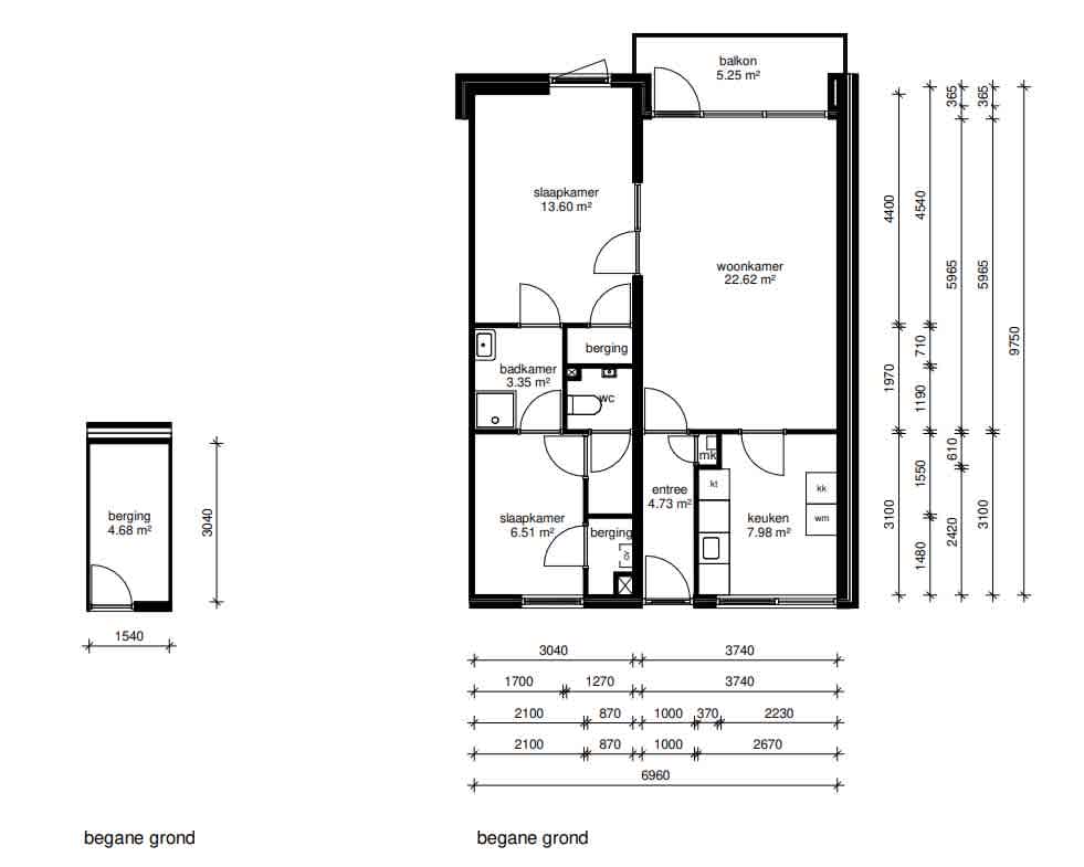
LET OP! De woning is geschikt voor personen van 60 jaar en ouder. Inwonende kinderen zijn niet toegestaan. Reacties van personen die jonger zijn dan 60 jaar zullen worden ingetrokken.Knusse seniorenwoning met 2 slaapkamers en een balkon in de wijk Selwerd. De woning bevindt zich op de eerste woonlaag van het complex. Er heeft een keukenrenovatie plaatsgevonden. U woont dichtbij winkels, uitvalswegen en het openbaar vervoer. In dit complex dient u zich voor Warmte aan te melden bij WarmteStad.Koken wordt op inductie gedaan, u bent zelf verantwoordelijk voor een geschikte kookplaat en pannen.De woning is te huur per 17 november 2025.Minimaal inkomen voor deze woning:• geen eisenMaximaal inkomen voor deze woning (dit geldt niet voor wijkvernieuwingsurgenties en rolstoelindicaties):• Voor 1 persoon € 49.669,-• Voor 2 of meer personen € 54.847,-De advertentie is gewijzigd op 22-10-2025 15:48:05.
Kenmerken
Type:
Woonruimte
Oppervlakte:
54.06 m²
Aantal kamers:
3
Energielabel:
A
Vertrekken
Badkamer
3.35 m²
Berging
4.68 m²
Slaapkamer
6.51 m²
Keuken
7.98 m²
Slaapkamer
13.60 m²
Woonkamer
22.62 m²
Vergelijkbare woningen
Appartement - Naberstraat/Groningen (€2450.00/110.00m2)
Groningen
€2.450
3 kamers
Huurwoning - Pioenstraat/Groningen (€2155.00/149.00m2)
Groningen
€2.155
6 kamers
Huurwoning - Hyacinthstraat/Groningen (€2155.00/127.00m2)
Groningen
€2.155
5 kamers
Studio - Coendersweg/Groningen (€840.00/24.00m2)
Groningen
€840
1 kamers
Geen foto
Kamer - Hoekstraat/Groningen (€850.00/19.98m2)
Groningen
€850
1 kamers
Huurwoning - Hondsruglaan/Groningen (€2900.00/178.00m2)
Groningen
€2.900
5 kamers
Meer woningen bekijken?
Ontdek ons volledige aanbod van huurwoningen in Nederland. Van studio's tot gezinswoningen.