Helper Kerkstraat 116 - Groningen
📍 Groningen
🚪 2 kamers
“Voordat wij u de woning definitief toewijzen, plannen wij een intakegesprek. Tijdens dat gesprek vertellen wij u meer over de woning en over de (nabije) woonomgeving en bespreken we met u of die bij u als huurder passen. Op basis van de intake kan de voorlopige aanbieding worden ingetrokken. Uw inschrijfdatum bij WoningNet is dus niet bepalend voor definitieve toewijzing van deze woning.” Algemeen Voor woningen in portieken dient u rekening te houden met leefgeluiden van medebewoners. De te huur per datum is onder voorbehoud. Indien deze woning meer dan 10 keer wordt geweigerd op basis van de toewijzingsprocedure inschrijfduur, zal de woning opnieuw gepubliceerd worden met toewijzingsprocedure loting. Huishoudsamenstelling Geschikt voor max. 2 personen. Parkeren Voor informatie over parkeren kunt u kijken op de website van de Gemeente Groningen.
Kenmerken
Type:
Woonruimte
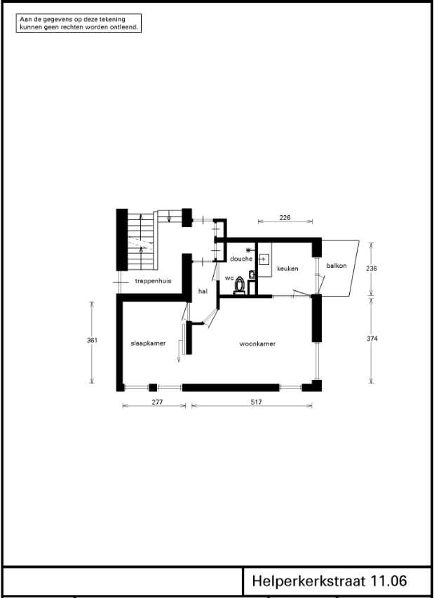
Aantal kamers:
2
Energielabel:
A
Vertrekken
Badkamer
2.70 m²
Berging
4.00 m²
Keuken
5.33 m²
Slaapkamer
10.00 m²
Woonkamer
18.31 m²
Vergelijkbare woningen
Appartement - Naberstraat/Groningen (€2450.00/110.00m2)
Groningen
€2.450
3 kamers
Huurwoning - Pioenstraat/Groningen (€2155.00/149.00m2)
Groningen
€2.155
6 kamers
Huurwoning - Hyacinthstraat/Groningen (€2155.00/127.00m2)
Groningen
€2.155
5 kamers
Studio - Coendersweg/Groningen (€840.00/24.00m2)
Groningen
€840
1 kamers
Geen foto
Kamer - Hoekstraat/Groningen (€850.00/19.98m2)
Groningen
€850
1 kamers
Huurwoning - Hondsruglaan/Groningen (€2900.00/178.00m2)
Groningen
€2.900
5 kamers
Meer woningen bekijken?
Ontdek ons volledige aanbod van huurwoningen in Nederland. Van studio's tot gezinswoningen.