Hiddemaheerd 92A - Groningen
📍 Groningen
🚪 2 kamers
Dit betreft een knusse woning met 1 slaapkamer en tuin op de begane grond. De woning bevindt zich in de groene wijk Beijum. U woont dichtbij winkels, openbaar vervoer en Kardinge. De nieuwe ingangsdatum is per 13 februari 2026.Minimaal inkomen voor deze woning:• geen eisenMaximaal inkomen voor deze woning (dit geldt niet voor wijkvernieuwingsurgenties en rolstoelindicaties):• Voor 1 persoon € 51.537,-• Voor 2 of meer personen € 56.910,-
Kenmerken
Type:
Woonruimte
Aantal kamers:
2
Energielabel:
B
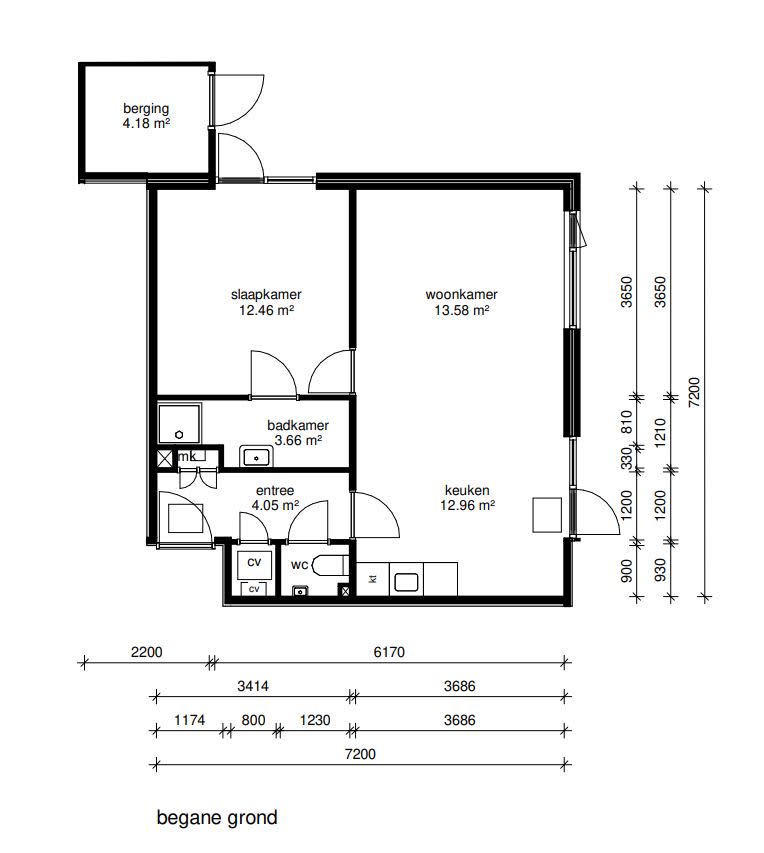
Vertrekken
Toilet
1.10 m²
Badkamer
3.66 m²
Berging
4.18 m²
Slaapkamer
12.46 m²
Keuken
12.96 m²
Woonkamer
13.58 m²
Vergelijkbare woningen
Appartement - Naberstraat/Groningen (€2450.00/110.00m2)
Groningen
€2.450
3 kamers
Huurwoning - Pioenstraat/Groningen (€2155.00/149.00m2)
Groningen
€2.155
6 kamers
Huurwoning - Hyacinthstraat/Groningen (€2155.00/127.00m2)
Groningen
€2.155
5 kamers
Studio - Coendersweg/Groningen (€840.00/24.00m2)
Groningen
€840
1 kamers
Geen foto
Kamer - Hoekstraat/Groningen (€850.00/19.98m2)
Groningen
€850
1 kamers
Huurwoning - Hondsruglaan/Groningen (€2900.00/178.00m2)
Groningen
€2.900
5 kamers
Meer woningen bekijken?
Ontdek ons volledige aanbod van huurwoningen in Nederland. Van studio's tot gezinswoningen.