+2
Hoefblad 33 - Huizen
📍 Huizen
🚪 3 kamers
📐 46.86 m²
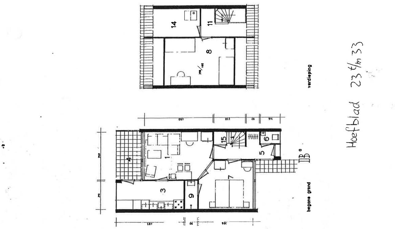
De woning is gelegen in een groene woonomgeving, nabij het Gooimeer met watersportfaciliteiten, sportvelden, scholen en winkelcentrum. Goede aansluiting op de snelwegen A1 en A 27 en openbaar vervoer verbindingen met Bussum, Hilversum, Utrecht en een snelbusverbinding met Amsterdam.Op loopafstand van een supermarkt in het Holleblok.3- kamer eengezinswoning met op de begane grond de woonkamer, gesloten keuken, slaapkamer, badkamer en toilet.Op de eerste verdieping is nog een slaapkamer met een bergruimte waar de CV ketel hangt.
Kenmerken
Type:
Woonruimte
Oppervlakte:
46.86 m²
Aantal kamers:
3
Energielabel:
C
Vertrekken
Badkamer
1.87 m²
Keuken
10.00 m²
Slaapkamer
13.42 m²
Slaapkamer
16.44 m²
Woonkamer
17.00 m²
Vergelijkbare woningen
Huurwoning - Imkerweg/Huizen (€5975.00/189.00m2)
Huizen
€5.975
6 kamers
Appartement - Labradorstroom/Huizen (€2500.00/110.00m2)
Huizen
€2.500
2 kamers
Huurwoning - Keucheniushof/Huizen (€2650.00/132.00m2)
Huizen
€2.650
5 kamers
Appartement - Crailoseweg/Huizen (€1555.00/68.00m2)
Huizen
€1.555
2 kamers
Appartement - Crailoseweg/Huizen (€3000.00/136.00m2)
Huizen
€3.000
3 kamers
Appartement - Crailoseweg/Huizen (€2270.00/98.00m2)
Huizen
€2.270
2 kamers
Meer woningen bekijken?
Ontdek ons volledige aanbod van huurwoningen in Nederland. Van studio's tot gezinswoningen.