Holtstek 75 - Groningen
📍 Groningen
🚪 2 kamers
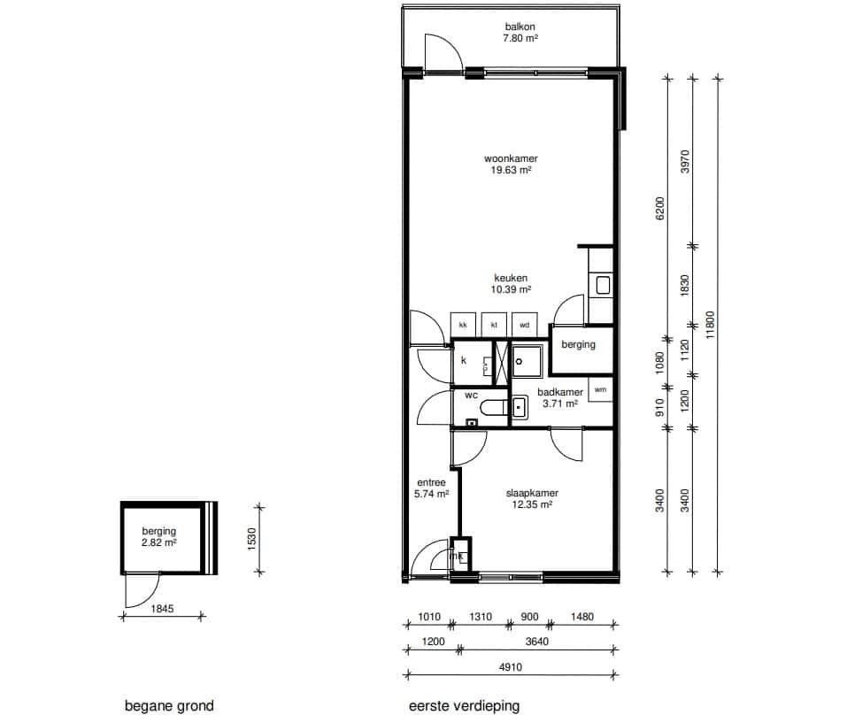
Leuke appartement met 1 slaapkamer en een ruim balkon. De woning bevindt zich op de tweede woonlaag. Diverse voorzieningen zijn in de buurt aanwezig. en binnen 5 minuten fietst u naar de binnenstad van Groningen.Het zijn gehorige woningen; we zijn op zoek naar een rustig persoon. De huuringangsdatum is 22 januari 2026.Minimaal inkomen voor deze woning:• geen eisenMaximaal inkomen voor deze woning (dit geldt niet voor wijkvernieuwingsurgenties en rolstoelindicaties):• Voor 1 persoon € 51.537,-• Voor 2 of meer personen € 56.910,-
Kenmerken
Type:
Woonruimte
Aantal kamers:
2
Vertrekken
Toilet
1.19 m²
Berging
2.82 m²
Badkamer
3.71 m²
Keuken
10.39 m²
Slaapkamer
12.35 m²
Woonkamer
19.63 m²
Vergelijkbare woningen
Appartement - Naberstraat/Groningen (€2450.00/110.00m2)
Groningen
€2.450
3 kamers
Huurwoning - Pioenstraat/Groningen (€2155.00/149.00m2)
Groningen
€2.155
6 kamers
Huurwoning - Hyacinthstraat/Groningen (€2155.00/127.00m2)
Groningen
€2.155
5 kamers
Studio - Coendersweg/Groningen (€840.00/24.00m2)
Groningen
€840
1 kamers
Geen foto
Kamer - Hoekstraat/Groningen (€850.00/19.98m2)
Groningen
€850
1 kamers
Huurwoning - Hondsruglaan/Groningen (€2900.00/178.00m2)
Groningen
€2.900
5 kamers
Meer woningen bekijken?
Ontdek ons volledige aanbod van huurwoningen in Nederland. Van studio's tot gezinswoningen.