Hoornsediep 136 - Groningen
📍 Groningen
🚪 4 kamers
Leuke ruime woning met drie slaapkamers op de eerste verdieping in de Rivierenbuurt. De woning heeft een balkon aan de voor-en achterkant. In de directe omgeving bevinden zich diverse voorzieningen, waaronder scholen, het stadspark en het bus- en treinstation. U fietst in een paar minuten naar het station en in tien minuten naar de Grote Markt. Van hieruit zijn de uitvalswegen goed bereikbaar.De nieuwe huuringangsdatum is: 25 februari 2026.Minimaal inkomen voor deze woning:• Voor 1 persoon: € 29.400,- • Voor 2 of meer personen (inclusief inwonende kinderen): € 39.925,-Maximaal inkomen voor deze woning (dit geldt niet voor wijkvernieuwingsurgenties en rolstoelindicaties):• Voor 1 persoon € 51.537• Voor 2 of meer personen € 56.910
Kenmerken
Type:
Woonruimte
Aantal kamers:
4
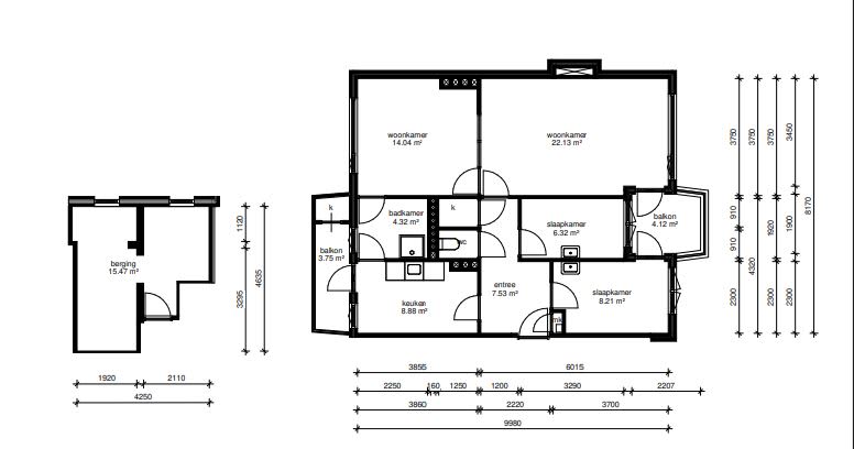
Vertrekken
Toilet
1.37 m²
Badkamer
4.32 m²
Slaapkamer
6.32 m²
Slaapkamer
8.21 m²
Keuken
8.88 m²
Berging
15.47 m²
Woonkamer
22.13 m²
Vergelijkbare woningen
Appartement - Naberstraat/Groningen (€2450.00/110.00m2)
Groningen
€2.450
3 kamers
Huurwoning - Pioenstraat/Groningen (€2155.00/149.00m2)
Groningen
€2.155
6 kamers
Huurwoning - Hyacinthstraat/Groningen (€2155.00/127.00m2)
Groningen
€2.155
5 kamers
Studio - Coendersweg/Groningen (€840.00/24.00m2)
Groningen
€840
1 kamers
Geen foto
Kamer - Hoekstraat/Groningen (€850.00/19.98m2)
Groningen
€850
1 kamers
Huurwoning - Hondsruglaan/Groningen (€2900.00/178.00m2)
Groningen
€2.900
5 kamers
Meer woningen bekijken?
Ontdek ons volledige aanbod van huurwoningen in Nederland. Van studio's tot gezinswoningen.