Hoornsediep 100 - Groningen
📍 Groningen
🚪 3 kamers
Leuk appartement met twee slaapkamers op de derde woonlaag in de Rivierenbuurt. De woning heeft zowel voor als achter een balkon.In de directe omgeving bevinden zich diverse voorzieningen, waaronder scholen, het stadspark en het bus- en treinstation. U fietst in een paar minuten naar het station en in tien minuten naar de Grote Markt. Van hieruit zijn de uitvalswegen goed bereikbaar. De nieuwe huuringangsdatum is: 03 februari 2026.Minimaal inkomen voor deze woning:• Voor 1 persoon: € 29.400,-• Voor 1 persoon met AOW: € 28.775,-• Voor 2 personen (inclusief inwonende kinderen): € 39.925,-,-• Voor 2 personen met AOW: € 38.650,-• Voor 3 of meer personen (inclusief inwonende kinderen): geen eisenMaximaal inkomen voor deze woning (dit geldt niet voor wijkvernieuwingsurgenties en rolstoelindicaties):• Voor 1 persoon € 51.537,-• Voor 2 of meer personen € 56.910,-Meer algemene informatie over inkomensregels vind je hier.De advertentie is gewijzigd op 15-01-2026 16:03:21.
Kenmerken
Type:
Woonruimte
Aantal kamers:
3
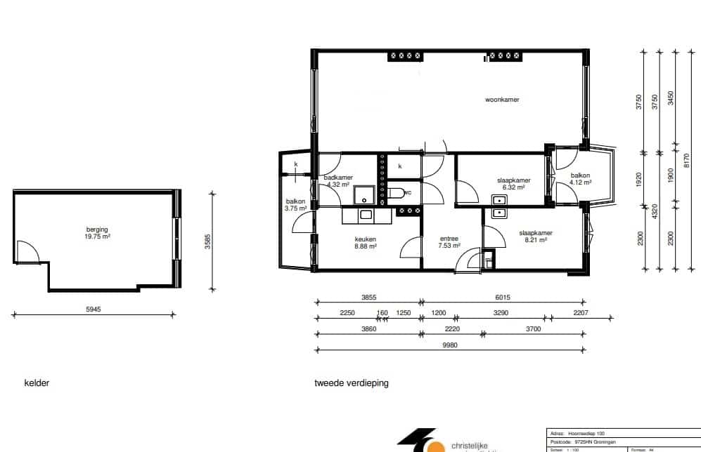
Vertrekken
Toilet
1.37 m²
Badkamer
4.32 m²
Slaapkamer
6.32 m²
Slaapkamer
8.21 m²
Keuken
8.88 m²
Berging
19.75 m²
Woonkamer
36.10 m²
Vergelijkbare woningen
Appartement - Naberstraat/Groningen (€2450.00/110.00m2)
Groningen
€2.450
3 kamers
Huurwoning - Pioenstraat/Groningen (€2155.00/149.00m2)
Groningen
€2.155
6 kamers
Huurwoning - Hyacinthstraat/Groningen (€2155.00/127.00m2)
Groningen
€2.155
5 kamers
Studio - Coendersweg/Groningen (€840.00/24.00m2)
Groningen
€840
1 kamers
Geen foto
Kamer - Hoekstraat/Groningen (€850.00/19.98m2)
Groningen
€850
1 kamers
Huurwoning - Hondsruglaan/Groningen (€2900.00/178.00m2)
Groningen
€2.900
5 kamers
Meer woningen bekijken?
Ontdek ons volledige aanbod van huurwoningen in Nederland. Van studio's tot gezinswoningen.