Huygensstraat 86 - Groningen
📍 Groningen
🚪 3 kamers
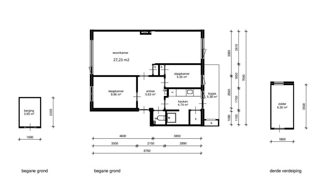
Leuke portiekwoning met 2 slaapkamers op de 1e woonlaag in de Stadsparkwijk. Er hoort ook een tuin bij de woning en er zit een bergzolder op de bovenste verdieping. U woont in de Stadsparkwijk dichtbij winkels, openbaar vervoer en u fietst binnen 10 minuten naar het centrum.De huuringangsdatum is per 19 december 2025.Minimaal inkomen voor deze woning:• geen eisenMaximaal inkomen voor deze woning (dit geldt niet voor wijkvernieuwingsurgenties en rolstoelindicaties):• Voor 1 persoon € 49.669,-• Voor 2 of meer personen € 54.847,-
Kenmerken
Type:
Woonruimte
Aantal kamers:
3
Energielabel:
B
Vertrekken
Toilet
1.10 m²
Badkamer
2.06 m²
Berging
3.95 m²
Keuken
4.74 m²
Slaapkamer
5.35 m²
Zolder
6.30 m²
Slaapkamer
8.96 m²
Woonkamer
27.50 m²
Vergelijkbare woningen
Appartement - Naberstraat/Groningen (€2450.00/110.00m2)
Groningen
€2.450
3 kamers
Huurwoning - Pioenstraat/Groningen (€2155.00/149.00m2)
Groningen
€2.155
6 kamers
Huurwoning - Hyacinthstraat/Groningen (€2155.00/127.00m2)
Groningen
€2.155
5 kamers
Studio - Coendersweg/Groningen (€840.00/24.00m2)
Groningen
€840
1 kamers
Geen foto
Kamer - Hoekstraat/Groningen (€850.00/19.98m2)
Groningen
€850
1 kamers
Huurwoning - Hondsruglaan/Groningen (€2900.00/178.00m2)
Groningen
€2.900
5 kamers
Meer woningen bekijken?
Ontdek ons volledige aanbod van huurwoningen in Nederland. Van studio's tot gezinswoningen.