Invasiestraat 74 - Groningen
📍 Groningen
🚪 3 kamers
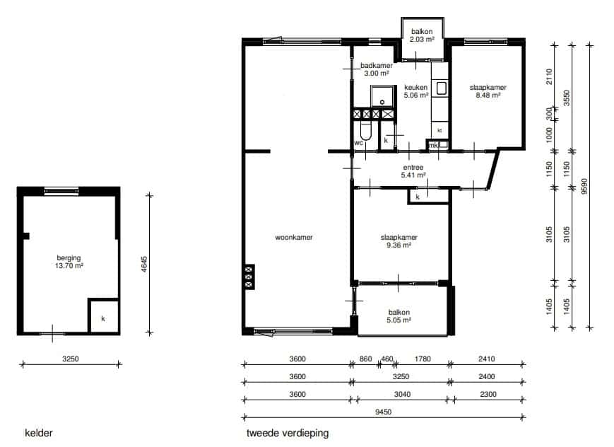
Deze leuke, maar gehorige woning ligt op de derde woonlaag in de wijk Corpus den Hoorn. De woning heeft een ruime woonkamer, bestaande uit een voor en achterkamer. De woning heeft twee slaapkamers en een groot en klein balkon. In de directe omgeving zijn diverse voorzieningen te vinden, waaronder openbaar vervoer en winkelcentrum Overwinningsplein. De uitvalswegen zijn snel bereikbaar en u fietst in tien minuten naar het centrum van de stad. Bij de woning horen 2 bergingen.De nieuwe huuringangsdatum is 16 januari 2026.Minimaal inkomen voor deze woning:• geen eisenMaximaal inkomen voor deze woning (dit geldt niet voor wijkvernieuwingsurgenties en rolstoelindicaties):• Voor 1 persoon € 51.537,-• Voor 2 of meer personen € 56.910,-
Kenmerken
Type:
Woonruimte
Aantal kamers:
3
Vertrekken
Toilet
0.86 m²
Badkamer
3.00 m²
Keuken
5.06 m²
Slaapkamer
8.48 m²
Slaapkamer
9.36 m²
Berging
13.70 m²
Berging
13.70 m²
Woonkamer
34.11 m²
Vergelijkbare woningen
Appartement - Naberstraat/Groningen (€2450.00/110.00m2)
Groningen
€2.450
3 kamers
Huurwoning - Pioenstraat/Groningen (€2155.00/149.00m2)
Groningen
€2.155
6 kamers
Huurwoning - Hyacinthstraat/Groningen (€2155.00/127.00m2)
Groningen
€2.155
5 kamers
Studio - Coendersweg/Groningen (€840.00/24.00m2)
Groningen
€840
1 kamers
Geen foto
Kamer - Hoekstraat/Groningen (€850.00/19.98m2)
Groningen
€850
1 kamers
Huurwoning - Hondsruglaan/Groningen (€2900.00/178.00m2)
Groningen
€2.900
5 kamers
Meer woningen bekijken?
Ontdek ons volledige aanbod van huurwoningen in Nederland. Van studio's tot gezinswoningen.