Invasiestraat 25 - Groningen
📍 Groningen
🚪 3 kamers
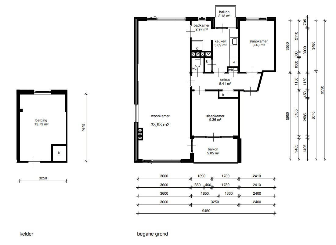
Deze leuke woning ligt op de eerste woonlaag in de wijk Corpus den Hoorn, en is op een hoek gelegen. De woning heeft een ruime woonkamer, twee slaapkamers en een groot en klein balkon. In de directe omgeving zijn diverse voorzieningen te vinden, waaronder openbaar vervoer en winkelcentrum Overwinningsplein. De uitvalswegen zijn snel bereikbaar en u fietst in tien minuten naar het centrum van de stad. De nieuwe huuringangsdatum is 18 maart 2026.Minimaal inkomen voor deze woning:• geen eisenMaximaal inkomen voor deze woning (dit geldt niet voor wijkvernieuwingsurgenties en rolstoelindicaties):• Voor 1 persoon € 51.537,-• Voor 2 of meer personen € 56.910,-
Kenmerken
Type:
Woonruimte
Aantal kamers:
3
Energielabel:
D
Vertrekken
Toilet
0.86 m²
Badkamer
2.97 m²
Keuken
5.09 m²
Slaapkamer
8.48 m²
Slaapkamer
9.36 m²
Berging
13.73 m²
Woonkamer
33.93 m²
Vergelijkbare woningen
Appartement - Naberstraat/Groningen (€2450.00/110.00m2)
Groningen
€2.450
3 kamers
Huurwoning - Pioenstraat/Groningen (€2155.00/149.00m2)
Groningen
€2.155
6 kamers
Huurwoning - Hyacinthstraat/Groningen (€2155.00/127.00m2)
Groningen
€2.155
5 kamers
Studio - Coendersweg/Groningen (€840.00/24.00m2)
Groningen
€840
1 kamers
Geen foto
Kamer - Hoekstraat/Groningen (€850.00/19.98m2)
Groningen
€850
1 kamers
Huurwoning - Hondsruglaan/Groningen (€2900.00/178.00m2)
Groningen
€2.900
5 kamers
Meer woningen bekijken?
Ontdek ons volledige aanbod van huurwoningen in Nederland. Van studio's tot gezinswoningen.