Invasiestraat 47 - Groningen
📍 Groningen
🚪 3 kamers
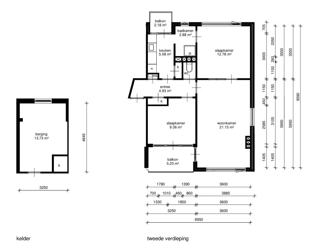
Deze leuke woning ligt op een hoek en op de bovenste woonlaag in de wijk Corpus den Hoorn. De woning heeft twee slaapkamers en een groot en klein balkon. In de directe omgeving zijn diverse voorzieningen te vinden, waaronder openbaar vervoer en winkelcentrum Overwinningsplein. De uitvalswegen zijn snel bereikbaar en u fietst in tien minuten naar het centrum van de stad. De nieuwe huuringangsdatum is 16 april 2026.Minimaal inkomen voor deze woning:• geen eisenMaximaal inkomen voor deze woning (dit geldt niet voor wijkvernieuwingsurgenties en rolstoelindicaties):• Voor 1 persoon € 51.537,-• Voor 2 of meer personen € 56.910,-
Kenmerken
Type:
Woonruimte
Aantal kamers:
3
Energielabel:
B
Vertrekken
Toilet
0.95 m²
Badkamer
2.88 m²
Keuken
5.08 m²
Slaapkamer
9.36 m²
Slaapkamer
12.78 m²
Berging
13.73 m²
Woonkamer
21.15 m²
Vergelijkbare woningen
Appartement - Naberstraat/Groningen (€2450.00/110.00m2)
Groningen
€2.450
3 kamers
Huurwoning - Pioenstraat/Groningen (€2155.00/149.00m2)
Groningen
€2.155
6 kamers
Huurwoning - Hyacinthstraat/Groningen (€2155.00/127.00m2)
Groningen
€2.155
5 kamers
Studio - Coendersweg/Groningen (€840.00/24.00m2)
Groningen
€840
1 kamers
Geen foto
Kamer - Hoekstraat/Groningen (€850.00/19.98m2)
Groningen
€850
1 kamers
Huurwoning - Hondsruglaan/Groningen (€2900.00/178.00m2)
Groningen
€2.900
5 kamers
Meer woningen bekijken?
Ontdek ons volledige aanbod van huurwoningen in Nederland. Van studio's tot gezinswoningen.