Jan Steenlaan 2401 - Veenendaal
📍 Veenendaal
🚪 4 kamers
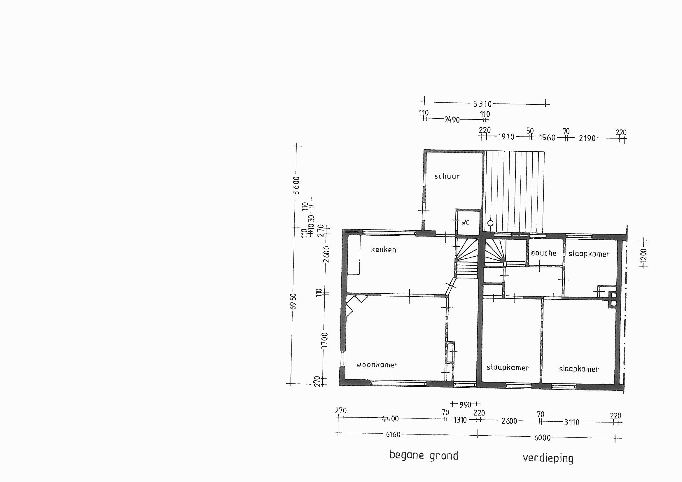
Deze maisonnettewoning heeft een dichte keuken, een balkon en een eigen berging. De woning wordt verwarmd met centrale verwarming.BuurtDe woning ligt in de buurt Franse Gat, in de wijk Zuidwest. Het centrum van Veenendaal en station Veenendaal Centrum liggen op fietsafstand. In de buurt zijn voldoende winkels voor alles wat u nodig heeft. Ook zijn er scholen, kinderopvang en sportvoorzieningen. De buurt is voor het grootste gedeelte gebouwd in de periode 1950 tot 1960. Veenvesters vernieuwt in de komende jaren veel woningen in deze buurt. Meer informatie hierover vindt u op www.fransegatvernieuwt.nlBijzonderhedenHet bouwjaar van de woning is 1956. De woning heeft energielabel C.Elektrisch kokenDe woning leveren wij op met een aansluiting om elektrisch te koken. Dit is een twee fasen aansluiting (Perilex). Het kopen en plaatsen van een kookplaat doet u zelf.Datum sleutelsDe verhuurdatum is nog niet zeker. Wordt u de nieuwe huurder? Dan laten we zo snel mogelijk weten wanneer u de sleutels krijgt.PlattegrondAls er een plattegrond beschikbaar is vindt u deze onder ‘downloads’. Houd er rekening mee dat de woning anders kan zijn dan de eventueel getoonde plattegrond.
Kenmerken
Type:
Woonruimte
Aantal kamers:
4
Energielabel:
C
Vertrekken
Badkamer
3.13 m²
Zolder
3.25 m²
Berging
5.14 m²
Slaapkamer
5.22 m²
Keuken
7.52 m²
Slaapkamer
10.95 m²
Slaapkamer
11.55 m²
Woonkamer
16.81 m²
Vergelijkbare woningen
Appartement - Brouwersgracht/Veenendaal (€1495.00/85.00m2)
Veenendaal
€1.495
3 kamers
Appartement - Stuivenbergheem/Veenendaal (€1355.00/80.00m2)
Veenendaal
€1.355
3 kamers
Appartement - Veenraden/Veenendaal (€1800.00/96.00m2)
Veenendaal
€1.800
3 kamers
Woning aan de Hooikade te Den Haag
Den Haag
€3.590
3 kamers
Woning aan de Amsterdamsestraat te Muiden
Muiden
€1.750
2 kamers
Woning aan de Pannesheiderstraat te Kerkrade
Kerkrade
€380
1 kamers
Meer woningen bekijken?
Ontdek ons volledige aanbod van huurwoningen in Nederland. Van studio's tot gezinswoningen.