+1
Jeanne d'Arclaan 120 - Amstelveen
📍 Amstelveen
🚪 2 kamers
📐 35.00 m²
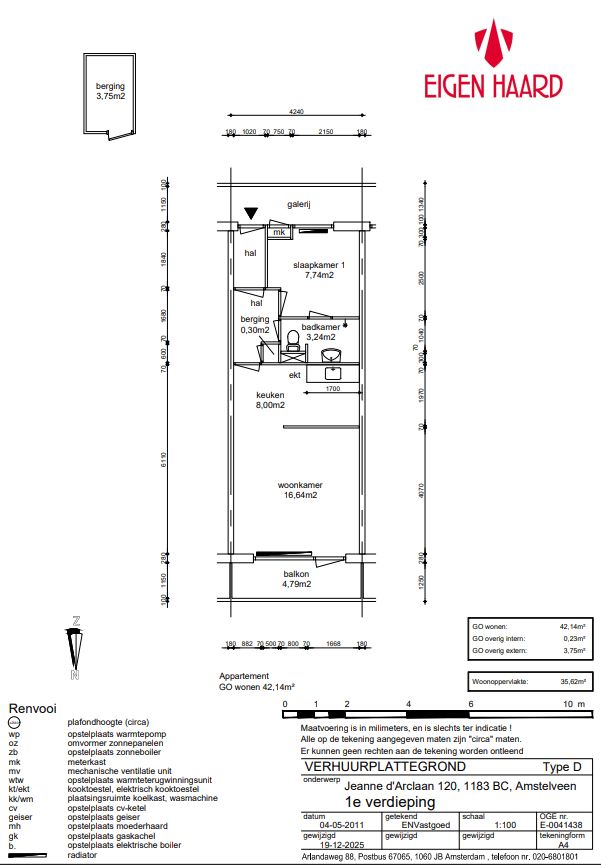
Parkeren/ met vergunning:Link naar gemeente Amstelveen.Parkeren kan voldoende in de buurt met een vergunning, mits er een vergunning wordt toegekend. Wij verwijzen u naar de gemeente voor informatie hierover. Optioneel is het mogelijk om in de omgeving een parkeerplaats te huren. Bekijk ons aanbod op de website van Eigen Haard. BijzonderhedenKleine 2 kamerwoning gelegen op de 1e etage. Bereikbaar per lift of per trap.In de servicekosten zit een voorschot voor de individuele stookkostenEr wordt een nieuwe keuken, badkamer en toilet geplaatstGehorige woningBetaald parkerenDeze woning ligt in een gebied nabij Schiphol. Hierdoor kunt u (mogelijke) geluids- en milieuoverlast ervaren.Balkon gelegen op het NoordenVanuit de brandveiligheid is het niet toegestaan om spullen en objecten op de galerij en in de algemene ruimte te plaatsen. De woning1 slaapkamerOpen keukenKookvoorziening op elektra nodig (geen gas)Wasmachine aansluiting in de badkamerBerging aanwezig op de begane grond(3,75 m2)Toilet in de badkamer In de buurtGelegen ib de buurt KostverlorenBasisschool (op fietsafstand)Middelbare school (op fietsafstand)Winkelcentrum (op fietsafstand)Openbaar vervoer (op loopafstand)Supermarkt (op fietsafstand) Let op: woningkenmerken, energielabel, plattegrond en huurprijs zijn nog onder voorbehoud. Technische staat We leveren de woning volgens de Eigen Haard standaard op. Voor meer informatie kijkt u op onze site. Houd er rekening mee dat u zelf ook nog het een en ander moet doen om de woning naar uw smaak te maken. Denk aan schilderen van de muren en plafonds, afstomen van behang en/ of het leggen van een vloer. Wilt u de woning huren? Voor meer informatie over welke documenten u nog meer moet inleveren op het moment dat u eerste kandidaat wordt voor de woning, kijkt u op onze website
Kenmerken
Type:
Woonruimte
Oppervlakte:
35.00 m²
Aantal kamers:
2
Energielabel:
C
Vertrekken
Slaapkamer
7.00 m²
Woonkamer
16.00 m²
Vergelijkbare woningen
Appartement - Kierkegaardstraat/Amstelveen (€2500.00/100.00m2)
Amstelveen
€2.500
4 kamers
Appartement - Traviatastraat/Amstelveen (€2600.00/117.00m2)
Amstelveen
€2.600
3 kamers
Huurwoning - Carel Fabritiuslaan/Amstelveen (€3350.00/110.00m2)
Amstelveen
€3.350
5 kamers
Appartement - Lindenhof/Amstelveen (€1050.00/46.00m2)
Amstelveen
€1.050
2 kamers
Huurwoning - Lesse/Amstelveen (€2900.00/125.00m2)
Amstelveen
€2.900
5 kamers
Appartement - Sint Philipsland/Amstelveen (€2500.00/80.00m2)
Amstelveen
€2.500
3 kamers
Meer woningen bekijken?
Ontdek ons volledige aanbod van huurwoningen in Nederland. Van studio's tot gezinswoningen.