Kamerlingh Onnesstraat 64 - Groningen
📍 Groningen
🚪 4 kamers
Ruime bovenwoning met 3 slaapkamers in de Stadsparkwijk. De woning heeft een balkon. Binnen een kwartier fietst u naar het centrum van de stad. Dit betreft een gehorige woning, dus we zijn op zoek naar rustige bewoners. U woont dichtbij het Stadspark, het station en het centrum. In de woning vinden een badkamer, keuken en toilet renovatie plaats.De nieuwe ingangsdatum is 31 maart 2026.Voordat wij u de woning definitief toewijzen, plannen wij een intakegesprek. Tijdens dat gesprek vertellen wij u meer over de woning en over de (nabije) woonomgeving en bespreken we met u of die bij u als huurder passen. Op basis van de intake kan de voorlopige aanbieding worden ingetrokken. Uw inschrijfdatum bij WoningNet is dus niet bepalend voor definitieve toewijzing van deze woning.Minimaal inkomen voor deze woning:• Voor 1 persoon: € 29.400,-• Voor 2 of meer personen (inclusief inwonende kinderen): € 39.925,-Maximaal inkomen voor deze woning (dit geldt niet voor wijkvernieuwingsurgenties en rolstoelindicaties):• Voor 2 of meer personen € 56.910,-
Kenmerken
Type:
Woonruimte
Aantal kamers:
4
Energielabel:
B
Vertrekken
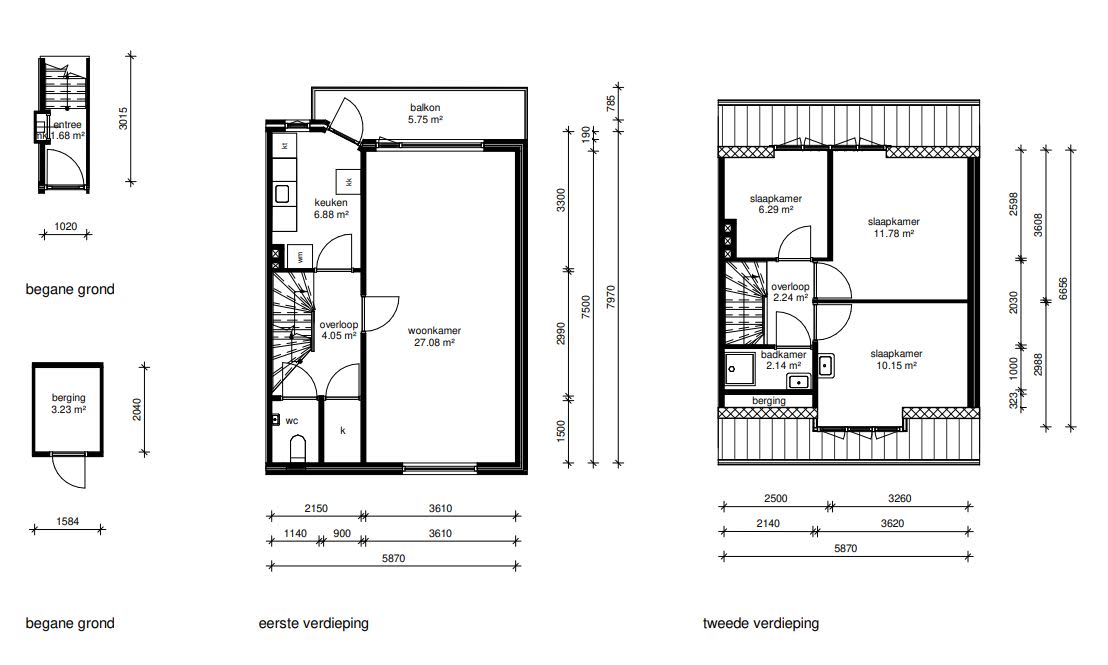
Toilet
1.71 m²
Badkamer
2.14 m²
Berging
3.23 m²
Slaapkamer
6.29 m²
Keuken
6.88 m²
Slaapkamer
10.15 m²
Slaapkamer
11.78 m²
Woonkamer
27.08 m²
Vergelijkbare woningen
Appartement - Naberstraat/Groningen (€2450.00/110.00m2)
Groningen
€2.450
3 kamers
Huurwoning - Pioenstraat/Groningen (€2155.00/149.00m2)
Groningen
€2.155
6 kamers
Huurwoning - Hyacinthstraat/Groningen (€2155.00/127.00m2)
Groningen
€2.155
5 kamers
Studio - Coendersweg/Groningen (€840.00/24.00m2)
Groningen
€840
1 kamers
Geen foto
Kamer - Hoekstraat/Groningen (€850.00/19.98m2)
Groningen
€850
1 kamers
Huurwoning - Hondsruglaan/Groningen (€2900.00/178.00m2)
Groningen
€2.900
5 kamers
Meer woningen bekijken?
Ontdek ons volledige aanbod van huurwoningen in Nederland. Van studio's tot gezinswoningen.