Klarinet 93 - Soest
📍 Soest
🚪 2 kamers
Klarinet 93 ligt in woongebouw “De Vijverhof” midden in de woonwijk Overhees. Gesitueerd rond een plein, met aan de west-zijde een grote vijver. Het winkelcentrum, gezondheidscentrum en bushalte bevinden zich op loopafstand.Het woongebouw bestaat uit twee vleugels van gedeeltelijk twee en drie woonlagen, onderling verbonden door een overdekte luchtbrug. Het complex bestaat uit 155 appartementen, waarvan 96 tweekamer en 59 driekamer appartementen.De benedenwoningen hebben een eigen tuin. De bovenwoningen hebben een overdekt balkon.Omthuis verhuurt woningen voor senioren vanaf 65 jaar. Met zaken die wonen net even wat makkelijker maken: een huismeester, persoonsalarmering, bibliotheek, hobbyruimte, logeerkamers voor gasten, ontmoetingscentrum en een actieve bewonerscommissie. Huurtoeslag is mogelijk afhankelijk van het inkomen. Geen meeverhuizende kinderen mogelijk.
Kenmerken
Type:
Woonruimte
Aantal kamers:
2
Energielabel:
C
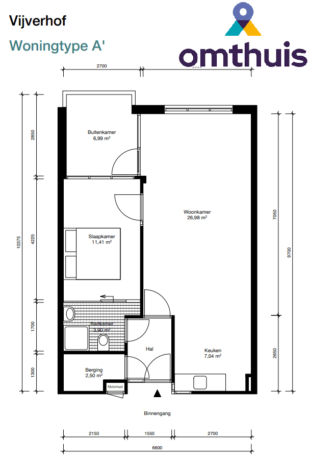
Vertrekken
Berging
2.50 m²
Hal
3.50 m²
Badkamer/toilet
3.90 m²
Slaapkamer
11.41 m²
Woonkamer/keuken
34.02 m²
Vergelijkbare woningen
Huurwoning - Chalonhof/Soest (€3500.00/219.00m2)
Soest
€3.500
6 kamers
Appartement - Varenstraat/Soest (€1500.00/60.00m2)
Soest
€1.500
1 kamers
Woning aan de Hooikade te Den Haag
Den Haag
€3.590
3 kamers
Woning aan de Amsterdamsestraat te Muiden
Muiden
€1.750
2 kamers
Woning aan de Pannesheiderstraat te Kerkrade
Kerkrade
€380
1 kamers
Woning aan de Maaskade te Rotterdam
Rotterdam
€2.350
3 kamers
Meer woningen bekijken?
Ontdek ons volledige aanbod van huurwoningen in Nederland. Van studio's tot gezinswoningen.