+11
Kloosterven 25 - Zaandam
📍 Zaandam
🚪 2 kamers
📐 61.66 m²
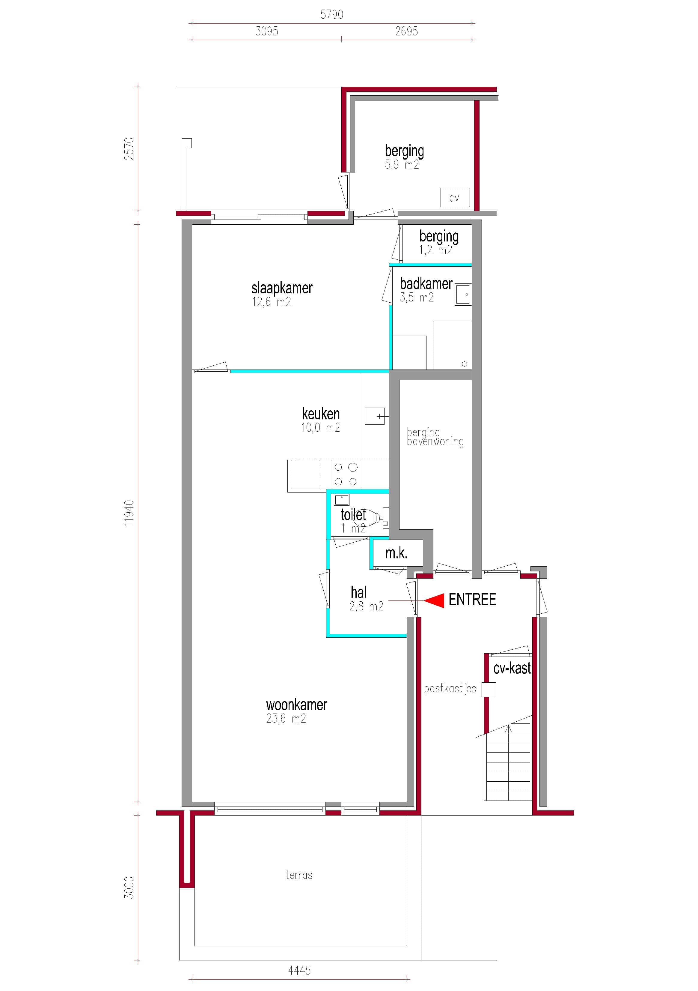
2-kamer woning in de VennenbuurtNiet geschikt voor inwonende kinderen. Let op!! Er gelden speciale voorrang regels voor de woning. Woning2-kamer woning op de begane grond.Entree.Hal met apart toilet. Woonkamer met toegang naar de tuin aan de voorkant van de woning.Open keuken.Slaapkamer met toegang tot de (gerenoveerde) badkamer en de berging.Tuin aan achterkant, welke ook toegang geeft tot de berging.Wanden zijn behangklaar. WoonomgevingRustige en groene woonwijk.Winkelcentrum op fietsafstand.Een bushalte op loopafstand.Het parkeren is gratis.Aanvullende informatieInwonende kinderen niet toegestaan.Elektrisch koken.Douchecabine gratis ter overname. Raambekleding gratis ter overname.De woning is verduurzaamd enkele jaren geleden met;nieuwe kunststof kozijnen.CO2 gestuurde mechanische ventilatie.Zonnepanelen.Extra voorwaarden Poelenburg en PeldersveldDe gemeente Zaanstad wil de leefbaarheid en kansen voor de bewoners in Poelenburg en Peldersveld vergroten. Om dat te bereiken, heeft de gemeente een aantal maatregelen genomen, waaronder de voorrangsregeling voor nieuwe bewoners. Wanneer een woningzoekende aan bepaalde kenmerken voldoet, maakt hij of zij meer kans op een huurwoning. Voldoet u niet aan voorrang regels Poelenburg/Peldersveld? Dan heeft het geen zin om op deze woning te reageren. Voor meer informatie over hoe de voorrang werkt en of u in aanmerking komt voor voorrang, gaat u naar: http://bit.ly/WoningnetppEen onderzoek door de politie naar uw verleden maakt onderdeel uit van de selectieprocedure. Staat iemand slecht bekend bij de politie vanwege crimineel gedrag en/of overlast, dan komt u niet in aanmerking voor een huurwoning in Poelenburg en Peldersveld.De bezichtiging vindt plaats op dinsdag 17 februari 2026 in de middag.
Kenmerken
Type:
Woonruimte
Oppervlakte:
61.66 m²
Aantal kamers:
2
Energielabel:
A+
Vertrekken
Badkamer
3.22 m²
Keuken
5.04 m²
Berging
5.68 m²
Slaapkamer
12.43 m²
Woonkamer
28.33 m²
Vergelijkbare woningen
Appartement - Oosterwerf/Zaandam (€1100.00/80.00m2)
Zaandam
€1.100
3 kamers
Appartement - Mahoniehout/Zaandam (€2150.00/72.00m2)
Zaandam
€2.150
3 kamers
Appartement - Timmerrak/Zaandam (€1840.00/84.00m2)
Zaandam
€1.840
3 kamers
Huurwoning - Symfonie/Zaandam (€2595.00/126.00m2)
Zaandam
€2.595
4 kamers
Appartement - Teakhout/Zaandam (€1200.00/56.00m2)
Zaandam
€1.200
2 kamers
Appartement - De Houthaalder/Zaandam (€1840.00/84.00m2)
Zaandam
€1.840
3 kamers
Meer woningen bekijken?
Ontdek ons volledige aanbod van huurwoningen in Nederland. Van studio's tot gezinswoningen.