Kornalijnlaan 278 - Groningen
📍 Groningen
🚪 3 kamers
Mooie portiekwoning met twee slaapkamers en een balkon op de eerste woonlaag in Vinkhuizen. De woning is middels een lift bereikbaar. In de directe omgeving bevinden zich diverse voorzieningen, waaronder een winkelcentrum en openbaar vervoer. Uitvalswegen zijn van hieruit goed bereikbaar en in een kwartier fietst u naar het centrum.In de woning zal alleen elektrisch gekookt kunnen worden. U bent zelf verantwoordelijk voor een geschikte kookplaat en pannen. In de woning vinden een toilet, keuken en badkamer renovatie plaats.De nieuwe huuringangsdatum is 14 april 2026.Minimaal inkomen voor deze woning:• Voor 1 persoon: € 29.400-• Voor 1 persoon met AOW: € 28.775,-• Voor 2 personen (inclusief inwonende kinderen): € 39.925,-• Voor 2 personen met AOW: € 38.650,00,-• Voor 3 of meer personen (inclusief inwonende kinderen): geen eisenMaximaal inkomen voor deze woning (dit geldt niet voor wijkvernieuwingsurgenties en rolstoelindicaties):• Voor 1 persoon € 51.537,-• Voor 2 of meer personen € 56.910,-
Kenmerken
Type:
Woonruimte
Aantal kamers:
3
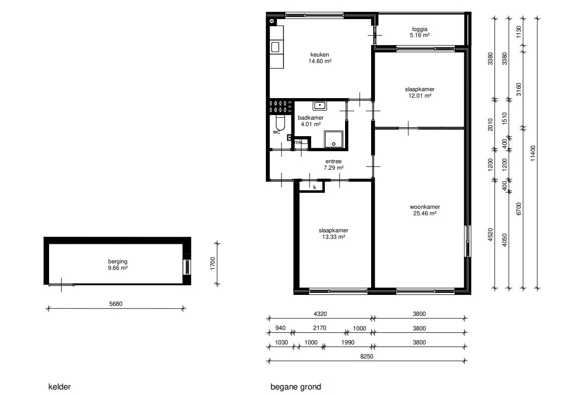
Vertrekken
Toilet
1.34 m²
Badkamer
4.01 m²
Berging
9.66 m²
Slaapkamer
12.01 m²
Slaapkamer
13.33 m²
Keuken
14.60 m²
Woonkamer
25.46 m²
Vergelijkbare woningen
Appartement - Naberstraat/Groningen (€2450.00/110.00m2)
Groningen
€2.450
3 kamers
Huurwoning - Pioenstraat/Groningen (€2155.00/149.00m2)
Groningen
€2.155
6 kamers
Huurwoning - Hyacinthstraat/Groningen (€2155.00/127.00m2)
Groningen
€2.155
5 kamers
Studio - Coendersweg/Groningen (€840.00/24.00m2)
Groningen
€840
1 kamers
Geen foto
Kamer - Hoekstraat/Groningen (€850.00/19.98m2)
Groningen
€850
1 kamers
Huurwoning - Hondsruglaan/Groningen (€2900.00/178.00m2)
Groningen
€2.900
5 kamers
Meer woningen bekijken?
Ontdek ons volledige aanbod van huurwoningen in Nederland. Van studio's tot gezinswoningen.