+19
La Palma 61 - Zaandam
📍 Zaandam
🚪 4 kamers
📐 87.86 m²
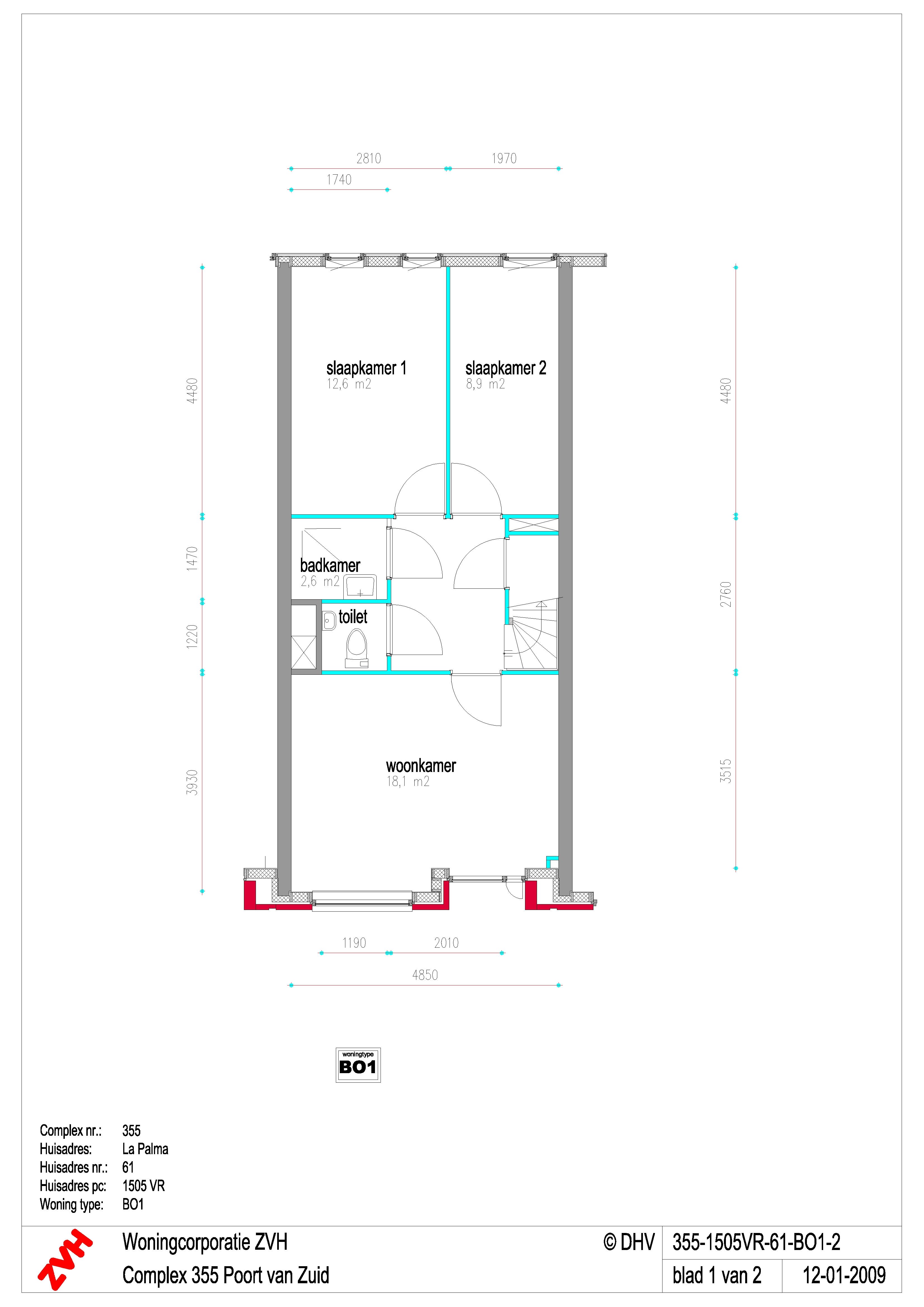
Maisonnette met een bijzondere indeling in Zaandam Zuid.Voorrang voor doorstromers sociale huur van ZVH.WoningGemeenschappelijke afgesloten entree.Trap en lift.Galerij.Entree.Hal.Eetkeuken aan de voorzijde van de woning. Koken kan alleen elektrisch.Er is ruimte voor een eettafel.Slaapkamer aan de achterzijde.Inpandige berging met de aansluiting voor de wasmachine.Trap naar de, lager gelegen, verdieping.Hal.De woonkamer bevindt zich aan de voorzijde.Aan de achterzijde liggen twee slaapkamers.Centraal in de woning bevindt zich het apart toilet en de kleine badkamer met douche en wastafel.De woning heeft een privé gedeelte op de galerij als buitenruimte, gelegen op het westen.In de onderbouw is een eigen berging.WoonomgevingDe woning ligt op 10 minuten fietsafstand van het centrum van Zaandam met alle voorzieningen in de buurt.In de directe omgeving treft u vele voorzieningen zoals winkels voor de dagelijkse boodschappen, openbaar vervoermogelijkheden (bus en een rechtstreekse treinverbinding naar Amsterdam en Schiphol), basisonderwijs, sportfaciliteiten en het Vijfhoekpark.Uitvalswegen naar Amsterdam, Purmerend en Alkmaar liggen in de buurt en met de auto bent u hierdoor binnen 10 minuten in Amsterdam!Aanvullende informatieDe woning is per direct beschikbaar.De wanden worden behangklaar opgeleverd.De woning maakt onderdeel uit van een complex met koop- en huurwoningen (V.v.E.).Er is een huishoudelijk reglement.Bekijk de plattegrond goed, de indeling zal niet iedereen aanspreken. Op het openbare binnenterrein bevinden zich parkeerplaatsen. Bezichtiging gaat plaatsvinden op donderdag 8 januari 2026 in de middag. Toewijzing en bijzonderhedenHuurovereenkomst voor onbepaalde tijd met een minimum van één jaar.Jaarlijkse huurverhoging.Administratiekosten bij het afsluiten van het huurcontract: € 56,50.Waarborgsom (1 maand netto huur).
Kenmerken
Type:
Woonruimte
Oppervlakte:
87.86 m²
Aantal kamers:
4
Energielabel:
A
Vertrekken
Badkamer
2.56 m²
Berging
5.90 m²
Slaapkamer
8.75 m²
Slaapkamer
11.35 m²
Slaapkamer
12.48 m²
Keuken
14.60 m²
Woonkamer
18.41 m²
Vergelijkbare woningen
Appartement - Oosterwerf/Zaandam (€1100.00/80.00m2)
Zaandam
€1.100
3 kamers
Appartement - Mahoniehout/Zaandam (€2150.00/72.00m2)
Zaandam
€2.150
3 kamers
Appartement - Timmerrak/Zaandam (€1840.00/84.00m2)
Zaandam
€1.840
3 kamers
Huurwoning - Symfonie/Zaandam (€2595.00/126.00m2)
Zaandam
€2.595
4 kamers
Appartement - Teakhout/Zaandam (€1200.00/56.00m2)
Zaandam
€1.200
2 kamers
Appartement - De Houthaalder/Zaandam (€1840.00/84.00m2)
Zaandam
€1.840
3 kamers
Meer woningen bekijken?
Ontdek ons volledige aanbod van huurwoningen in Nederland. Van studio's tot gezinswoningen.