Laan van de Vrijheid 247 - Groningen
📍 Groningen
🚪 3 kamers
Mooi appartement op de 20e verdieping in La Liberté – Corpus den HoornDit lichte en ruime appartement beschikt over een royale woonkamer met open keuken, twee slaapkamers en een loggia met uitzicht. In de kelder van het complex bevindt zich een eigen berging. Het gebouw is voorzien van twee liften, waardoor u de woning snel en comfortabel bereikt. In de directe omgeving vindt u diverse voorzieningen, zoals winkelcentrum Overwinningsplein en openbaar vervoer. Met de fiets bent u in ongeveer 15 minuten in het centrum van Groningen. De uitvalswegen A7 en A28 zijn vanuit deze locatie goed en snel bereikbaar.Beschikbaar vanaf: 21 april 2026Extra:Onder het gebouw bevindt zich een parkeergarage. Hier kunt u optioneel een parkeerplaats huren voor €78,94 per maand. Het huurcontract voor de parkeerplaats is maandelijks opzegbaar.Minimaal inkomen voor deze woning:• Voor 1 persoon: € 29.400,-• Voor 1 persoon met AOW: € 28.775,-• Voor 2 of meer personen (inclusief inwonende kinderen): € 39.925,-• Voor 2 of meer personen met AOW: € 38.650,-Maximaal inkomen voor deze woning (dit geldt niet voor wijkvernieuwingsurgenties en rolstoelindicaties):• Voor 1 persoon € 51.537,-• Voor 2 of meer personen € 56.910,-
Kenmerken
Type:
Woonruimte
Aantal kamers:
3
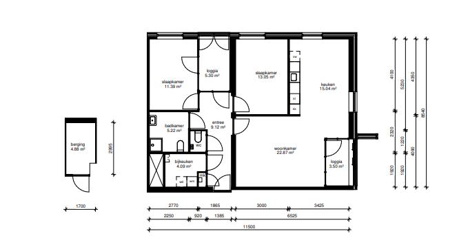
Vertrekken
Toilet
1.12 m²
Bijkeuken
4.09 m²
Berging
4.88 m²
Slaapkamer
11.39 m²
Slaapkamer
13.05 m²
Keuken
15.04 m²
Woonkamer
22.87 m²
Vergelijkbare woningen
Appartement - Naberstraat/Groningen (€2450.00/110.00m2)
Groningen
€2.450
3 kamers
Huurwoning - Pioenstraat/Groningen (€2155.00/149.00m2)
Groningen
€2.155
6 kamers
Huurwoning - Hyacinthstraat/Groningen (€2155.00/127.00m2)
Groningen
€2.155
5 kamers
Studio - Coendersweg/Groningen (€840.00/24.00m2)
Groningen
€840
1 kamers
Geen foto
Kamer - Hoekstraat/Groningen (€850.00/19.98m2)
Groningen
€850
1 kamers
Huurwoning - Hondsruglaan/Groningen (€2900.00/178.00m2)
Groningen
€2.900
5 kamers
Meer woningen bekijken?
Ontdek ons volledige aanbod van huurwoningen in Nederland. Van studio's tot gezinswoningen.