Lauwersstraat 96 - Groningen
📍 Groningen
🚪 3 kamers
📐 51.63 m²
Leuke portiekwoning met een ruime woonkamer. Het betreft een gehorige woning, dus wij zijn op zoek naar rustige personen. U woont op 10 minuten fietsen van het station en centrum. De huuringangsdatum is per direct. De woning wordt aangeboden via een groepsbezichtiging op donderdagochtend 9 oktober. De kandidaten die hiervoor worden uitgenodigd, zullen hierover op woensdag 8 oktober een uitnodiging ontvangen.Minimaal inkomen voor deze woning:• geen eisenMaximaal inkomen voor deze woning (dit geldt niet voor wijkvernieuwingsurgenties en rolstoelindicaties):• Voor 1 persoon € 49.669,-• Voor 2 of meer personen € 54.847,-
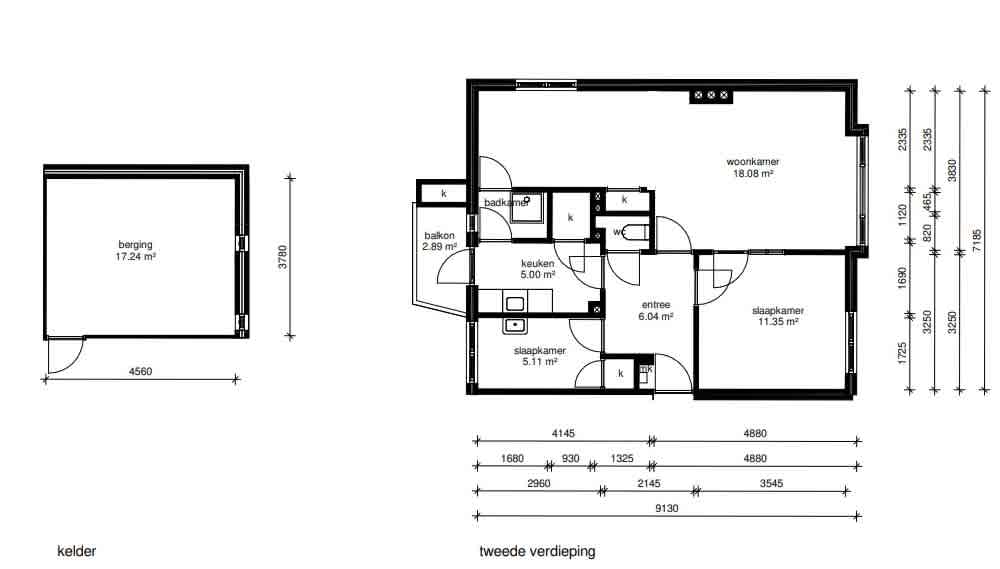
Kenmerken
Type:
Woonruimte
Oppervlakte:
51.63 m²
Aantal kamers:
3
Vertrekken
Badkamer
1.88 m²
Keuken
5.00 m²
Slaapkamer
5.11 m²
Slaapkamer
9.68 m²
Woonkamer
29.96 m²
Vergelijkbare woningen
Appartement - Naberstraat/Groningen (€2450.00/110.00m2)
Groningen
€2.450
3 kamers
Huurwoning - Pioenstraat/Groningen (€2155.00/149.00m2)
Groningen
€2.155
6 kamers
Huurwoning - Hyacinthstraat/Groningen (€2155.00/127.00m2)
Groningen
€2.155
5 kamers
Studio - Coendersweg/Groningen (€840.00/24.00m2)
Groningen
€840
1 kamers
Geen foto
Kamer - Hoekstraat/Groningen (€850.00/19.98m2)
Groningen
€850
1 kamers
Huurwoning - Hondsruglaan/Groningen (€2900.00/178.00m2)
Groningen
€2.900
5 kamers
Meer woningen bekijken?
Ontdek ons volledige aanbod van huurwoningen in Nederland. Van studio's tot gezinswoningen.