Leeuweriksweide 83 - Wageningen
📍 Wageningen
🚪 2 kamers
Een comfortabel appartement op de begane grond, ideaal gelegen op korte fietsafstand van het centrum van Wageningen. Het appartement beschikt over een een prettige indeling met voldoende lichtinval. Voorzieningen zoals winkels en openbaar vervoer bevinden zich op korte afstand. Een ideale woning voor wie centraal wil wonen.
Kenmerken
Type:
Woonruimte
Aantal kamers:
2
Energielabel:
B
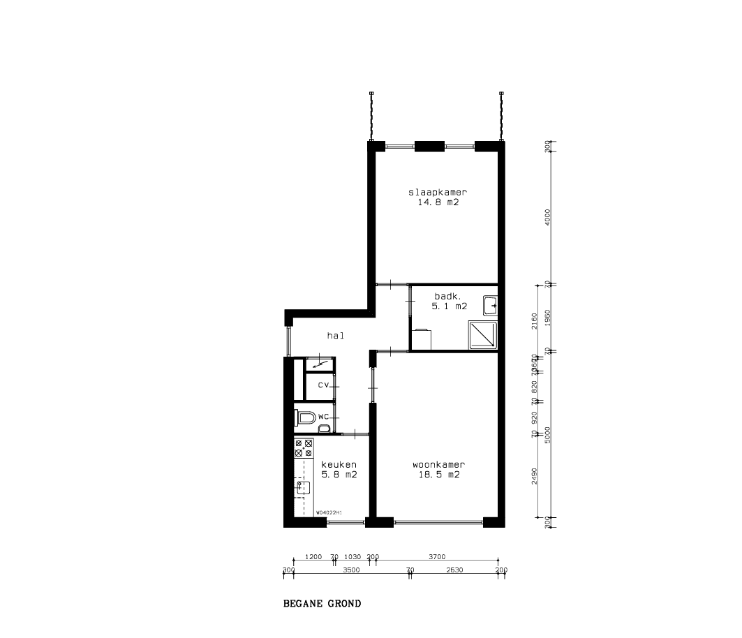
Vertrekken
Berging
3.00 m²
Badkamer
5.13 m²
Keuken
5.79 m²
Slaapkamer
14.77 m²
Woonkamer
18.38 m²
Vergelijkbare woningen
Huurwoning - Veerstraat/Wageningen (€1808.00/104.00m2)
Wageningen
€1.808
5 kamers
Appartement - Thorbeckestraat/Wageningen (€2100.00/69.00m2)
Wageningen
€2.100
4 kamers
Woning aan de Hooikade te Den Haag
Den Haag
€3.590
3 kamers
Woning aan de Amsterdamsestraat te Muiden
Muiden
€1.750
2 kamers
Woning aan de Pannesheiderstraat te Kerkrade
Kerkrade
€380
1 kamers
Woning aan de Maaskade te Rotterdam
Rotterdam
€2.350
3 kamers
Meer woningen bekijken?
Ontdek ons volledige aanbod van huurwoningen in Nederland. Van studio's tot gezinswoningen.