Merelstraat 166 - Groningen
📍 Groningen
🚪 2 kamers
Algemeen Het appartementencomplex de Oosterparkheem ligt in de Oosterparkwijk in Groningen. Met de bus bent u binnen 10 minuten in het centrum van Groningen. De bushalte bevindt zich voor de deur. Ook de supermarkt en enkele andere winkels zijn op loopafstand. Bijzonderheden De bruto huurprijs is inclusief verwarming, water en elektra. Hiervoor hoeft u geen eigen contract af te sluiten. Woonzorg heeft een samenwerking met TSN om een deel van de begane grond en circa 40 appartementen op de eerste en tweede verdieping te verhuren. Overname aanwezig van o.a. een vloerHet complex Alle appartementen zijn drempelvrij. Op de begane grond is een gemeenschappelijke scootmobiel- en fietsenberging. Wijkrestaurant de MerelLogopediste aanwezig Nagelstyliste aanwezig Fysiotherapie aanwezigWeggeefwinkel Aanbiedprocedure Voldoet aan alle standaard voorwaarden. Wanneer u na de sluitingstermijn op een aanbiedingspositie staat zal de bewonersconsulent contact met u opnemen en beoordelen of er een bezichtiging ingepland gaat worden. Overige huurprijs componenten Naast de genoemde netto huur en gebruikerskosten betaalt u maandelijks ook voor; Kosten beheer (bewonersconsulent), onderhoud, schoonmaak algemene ruimtes, glasfonds, huur boiler, onderhoud tuin en ontstoppingsfonds. Dit alles valt onder de genoemde bruto huurprijs. BezichtigingGroepsbezichtiging voor de eerste 4 kandidaten onder voorbehoud op donderdagochtend 11 december 2025.
Kenmerken
Type:
Woonruimte
Aantal kamers:
2
Energielabel:
E
Vertrekken
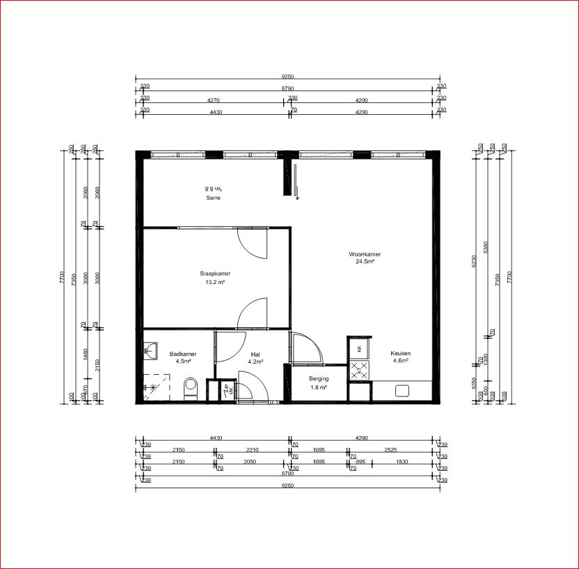
Badkamer
4.50 m²
Serre
9.44 m²
Slaapkamer
13.20 m²
Woonkamer
33.11 m²
Vergelijkbare woningen
Appartement - Naberstraat/Groningen (€2450.00/110.00m2)
Groningen
€2.450
3 kamers
Huurwoning - Pioenstraat/Groningen (€2155.00/149.00m2)
Groningen
€2.155
6 kamers
Huurwoning - Hyacinthstraat/Groningen (€2155.00/127.00m2)
Groningen
€2.155
5 kamers
Studio - Coendersweg/Groningen (€840.00/24.00m2)
Groningen
€840
1 kamers
Geen foto
Kamer - Hoekstraat/Groningen (€850.00/19.98m2)
Groningen
€850
1 kamers
Huurwoning - Hondsruglaan/Groningen (€2900.00/178.00m2)
Groningen
€2.900
5 kamers
Meer woningen bekijken?
Ontdek ons volledige aanbod van huurwoningen in Nederland. Van studio's tot gezinswoningen.