Merwedestraat 19 - Groningen
📍 Groningen
🚪 3 kamers
Deze seniorenwoning met 1 slaapkamer, ligt op de 4e woonlaag in de Rivierenbuurt. In dit complex is een lift aanwezig. In de directe omgeving vindt u verschillende voorzieningen, waaronder een supermarkt en het station. U fietst in vijf minuten naar het centrum van de stad. Deze woning is alleen geschikt voor senioren vanaf 60 jaar en ouder. Inwonende kinderen zijn in dit complex niet toegestaan. De nieuwe huuringangsdatum is 15 april 2026.Minimaal inkomen voor deze woning:• geen eisenMaximaal inkomen voor deze woning (dit geldt niet voor wijkvernieuwingsurgenties en rolstoelindicaties):• Voor 1 persoon € 51.537,-• Voor 2 of meer personen € 56.910,-
Kenmerken
Type:
Woonruimte
Aantal kamers:
3
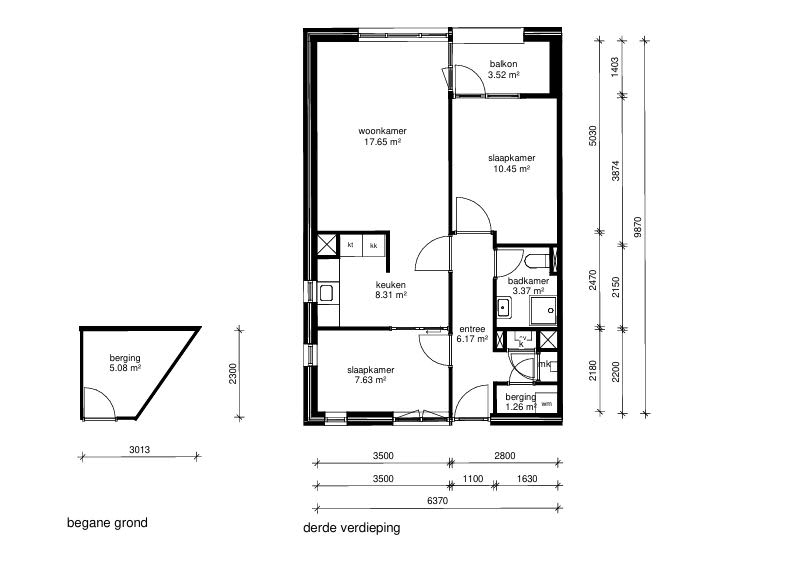
Vertrekken
Berging
5.08 m²
Slaapkamer
7.63 m²
Keuken
8.31 m²
Slaapkamer
10.45 m²
Woonkamer
17.65 m²
Vergelijkbare woningen
Appartement - Naberstraat/Groningen (€2450.00/110.00m2)
Groningen
€2.450
3 kamers
Huurwoning - Pioenstraat/Groningen (€2155.00/149.00m2)
Groningen
€2.155
6 kamers
Huurwoning - Hyacinthstraat/Groningen (€2155.00/127.00m2)
Groningen
€2.155
5 kamers
Studio - Coendersweg/Groningen (€840.00/24.00m2)
Groningen
€840
1 kamers
Geen foto
Kamer - Hoekstraat/Groningen (€850.00/19.98m2)
Groningen
€850
1 kamers
Huurwoning - Hondsruglaan/Groningen (€2900.00/178.00m2)
Groningen
€2.900
5 kamers
Meer woningen bekijken?
Ontdek ons volledige aanbod van huurwoningen in Nederland. Van studio's tot gezinswoningen.