Noorderbinnensingel 55C - Groningen
📍 Groningen
🚪 2 kamers
Leuke starterswoning op de derde (bovenste) woonlaag in het centrumDeze leuke starterswoning ligt op een rustige plek aan het Noorderplantsoen, met alle voorzieningen van de binnenstad om de hoek.De woning is met name geschikt voor een rustige bewoner die rekening houdt met de gehorigheid van het pand.Huurtoeslag is mogelijk vanaf 21 jaar.De advertentie is gewijzigd op 09-02-2026 20:33:52.
Kenmerken
Type:
Woonruimte
Aantal kamers:
2
Energielabel:
C
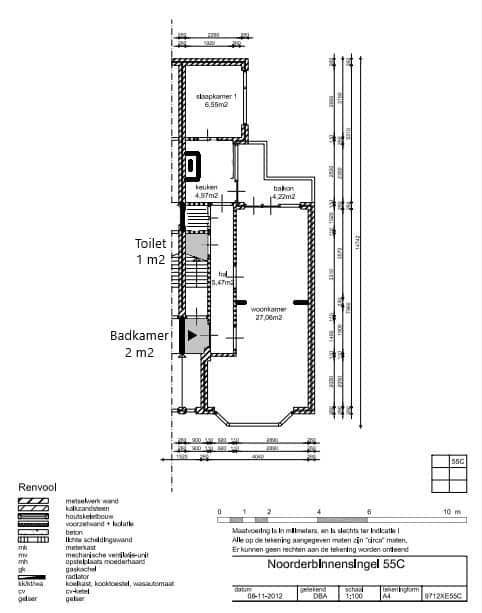
Vertrekken
Toilet
1.50 m²
Doucheruimte
1.63 m²
Keuken
5.00 m²
Hal
5.00 m²
Schuur
5.00 m²
Overig vertrek
6.00 m²
Woon-/slaapkamer
27.00 m²
Vergelijkbare woningen
Appartement - Naberstraat/Groningen (€2450.00/110.00m2)
Groningen
€2.450
3 kamers
Huurwoning - Pioenstraat/Groningen (€2155.00/149.00m2)
Groningen
€2.155
6 kamers
Huurwoning - Hyacinthstraat/Groningen (€2155.00/127.00m2)
Groningen
€2.155
5 kamers
Studio - Coendersweg/Groningen (€840.00/24.00m2)
Groningen
€840
1 kamers
Geen foto
Kamer - Hoekstraat/Groningen (€850.00/19.98m2)
Groningen
€850
1 kamers
Huurwoning - Hondsruglaan/Groningen (€2900.00/178.00m2)
Groningen
€2.900
5 kamers
Meer woningen bekijken?
Ontdek ons volledige aanbod van huurwoningen in Nederland. Van studio's tot gezinswoningen.