+1
Noorderspoorsingel 20 - Groningen
📍 Groningen
🚪 3 kamers
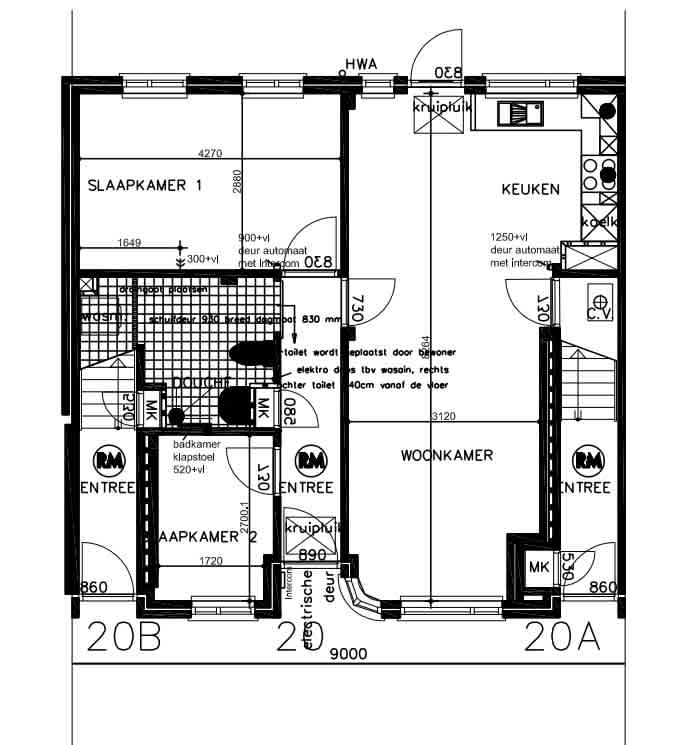
Rolstoeltoegankelijke benedenwoning met tuinDeze comfortabele benedenwoning is volledig gelijkvloers en rolstoeltoegankelijk. De woning beschikt over brede doorgangen, elektrische deuren en een aangepaste badkamer met schuifdeur. De keuken is praktisch ingericht en goed bereikbaar.De woning ligt op korte afstand van winkelcentrum Selwerd en het Noorderstation. Aan de overzijde bevindt zich een groen veld met speeltoestellen voor kinderen om te spelen.Huurtoeslag is mogelijk.
Kenmerken
Type:
Woonruimte
Aantal kamers:
3
Energielabel:
A
Vertrekken
Toilet
1.50 m²
Keuken
3.20 m²
Schuur
4.40 m²
Slaapkamer
4.64 m²
Badkamer
5.00 m²
Slaapkamer
12.30 m²
Woonkamer
22.78 m²
Vergelijkbare woningen
Appartement - Naberstraat/Groningen (€2450.00/110.00m2)
Groningen
€2.450
3 kamers
Huurwoning - Pioenstraat/Groningen (€2155.00/149.00m2)
Groningen
€2.155
6 kamers
Huurwoning - Hyacinthstraat/Groningen (€2155.00/127.00m2)
Groningen
€2.155
5 kamers
Studio - Coendersweg/Groningen (€840.00/24.00m2)
Groningen
€840
1 kamers
Geen foto
Kamer - Hoekstraat/Groningen (€850.00/19.98m2)
Groningen
€850
1 kamers
Huurwoning - Hondsruglaan/Groningen (€2900.00/178.00m2)
Groningen
€2.900
5 kamers
Meer woningen bekijken?
Ontdek ons volledige aanbod van huurwoningen in Nederland. Van studio's tot gezinswoningen.