Oosterhamriklaan 290A - Groningen
📍 Groningen
🚪 1 kamers
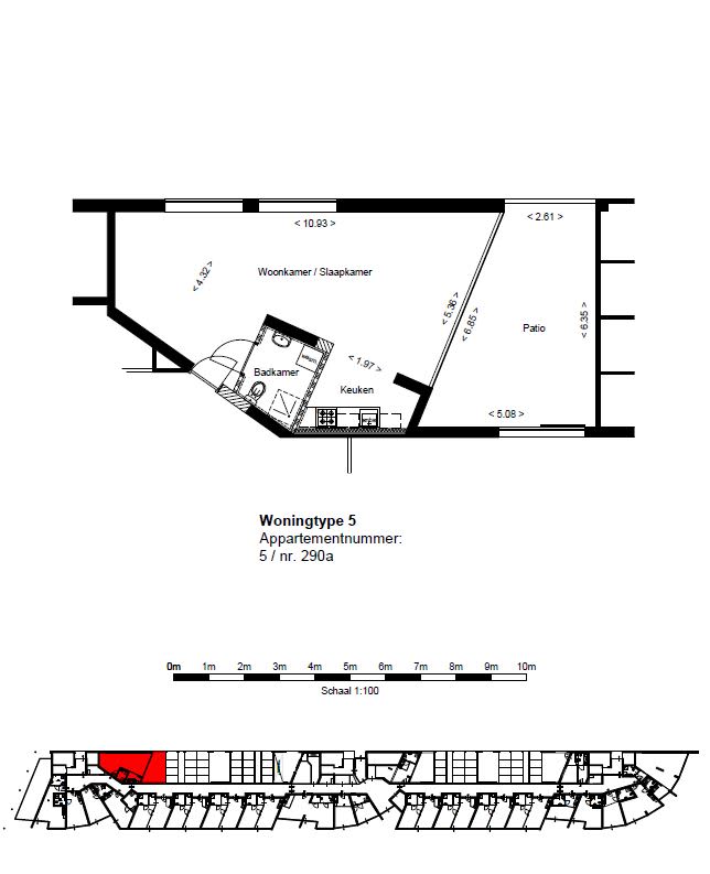
Algemeen Het appartement is geschikt voor maximaal 1 volwassene. Boven de appartementen bevinden zich woningen die worden gehuurd door 50 plussers die hier rustig en met plezier wonen. Houdt u van rustig wonen aan het Molukkenplantsoen? Dan is dit wellicht iets voor u. Indien deze woning meer dan 10 keer wordt geweigerd op basis van de toewijzingsprocedure inschrijfduur, zal de woning opnieuw gepubliceerd worden met toewijzingsprocedure loting. Verdieping Het appartement is gelegen op de begane grond. Het woon en slaapgedeelte is in één ruimte. Bij deze woning hoort een eigen berging. Daarnaast is er een algemene fietsenberging waar u uw fiets kwijt kunt. In het appartement wordt elektrisch gekookt. Het verwarmen van het appartement, het elektraverbruik en het waterverbruik is centraal geregeld. Door middel van individuele meters in het appartement wordt het daadwerkelijke verbruik geregistreerd. In de servicekosten is hier een maandelijks voorschot voor opgenomen. Jaarlijks wordt dit afgerekend. U hoeft niet zelf te kiezen voor een energieleverancier. Huurprijzen en servicekosten In de huurprijs betaalt u voor de servicekosten voor o.a. schoonmaak en elektraverbruik van de gemeenschappelijke ruimte, onderhoud van het groen en de voorschotten voor elektra, verwarming en water. Parkeren Er is parkeergelegenheid bij het woongebouw. Informatie over parkeren in de wijk kunt u vinden op de website van de gemeente Groningen.
Kenmerken
Type:
Woonruimte
Aantal kamers:
1
Energielabel:
C
Vertrekken
Badkamer/toilet
4.00 m²
Keuken
5.00 m²
Woonkamer
40.00 m²
Vergelijkbare woningen
Appartement - Naberstraat/Groningen (€2450.00/110.00m2)
Groningen
€2.450
3 kamers
Huurwoning - Pioenstraat/Groningen (€2155.00/149.00m2)
Groningen
€2.155
6 kamers
Huurwoning - Hyacinthstraat/Groningen (€2155.00/127.00m2)
Groningen
€2.155
5 kamers
Studio - Coendersweg/Groningen (€840.00/24.00m2)
Groningen
€840
1 kamers
Geen foto
Kamer - Hoekstraat/Groningen (€850.00/19.98m2)
Groningen
€850
1 kamers
Huurwoning - Hondsruglaan/Groningen (€2900.00/178.00m2)
Groningen
€2.900
5 kamers
Meer woningen bekijken?
Ontdek ons volledige aanbod van huurwoningen in Nederland. Van studio's tot gezinswoningen.